


















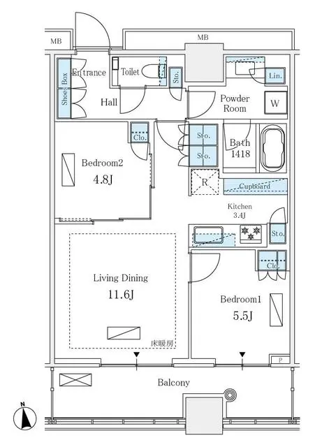
Perched within the World Tower Residence, this brand-new 2LDK apartment spans 60.35㎡, offering a modern urban retreat with exceptional convenience. Floor-to-ceiling windows fill the space with natural light, while high-end fixtures, a fully equipped kitchen, and a sleek bath create a sophisticated living environment. Residents enjoy premium shared amenities designed for comfort and social connection, from lounge areas to fitness facilities, blending practicality with luxury. Situated just steps from the station, the surrounding neighborhood balances vibrant city energy with ease of access. Cafés, shopping, and cultural hotspots abound, making it ideal for young professionals or couples seeking a dynamic, connected lifestyle in Tokyo’s thriving heart.
Listed by Tokyo Portfolio • Acting as intermediary
Listing updated: 2025-09-21
Around This Property
Hamamatsucho
2 min walk
Yamanote
Keihin Tohoku Negishi
Daimon
4 min walk
- Asakusa
- Oedo
The British School Tokyo (Azabudai Hills)
Ages 3-18 years | By Car 7 mins by foot
Floor Plans & Monthly Fees

¥500,000
Priceper month
Including management fee (-)¥0
•
Insurance (¥0)
2
Beds
1
Baths
60.35
m²

More Units in This Building

WORLD TOWER RESIDENCE
2024
Built
19
Units on sale

Unit
38051 Bed • 3 Bath
¥1,530,000Price

Unit
28141 Bed • 2 Bath
¥660,000Price

Unit
17061 Bed • 3 Bath
¥1,050,000Price

Unit
191 Bed • 3 Bath
¥1,020,000Price

Unit
331 Bed • 2 Bath
¥688,000,000Price

Unit
401 Bed • 2 Bath
¥369,000,000Price

Unit
40-11 Bed • 2 Bath
¥598,000,000Price

Unit
201 Bed • 2 Bath
¥498,800,000Price

Unit
24071 Bed • 2 Bath
¥518,000Price

Unit
26101 Bed • 3 Bath
¥750,000Price

Unit
30011 Bed • 2 Bath
¥900,000Price

Unit
37101 Bed • 2 Bath
¥500,000Price

Unit
28121 Bed • 2 Bath
¥530,000Price

Unit
27131 Bed • 2 Bath
¥530,000Price

Unit
25111 Bed • 2 Bath
¥460,000Price

Unit
27071 Bed • 2 Bath
¥495,000Price

Unit
361 Bed • 2 Bath
¥365,000,000Price

Unit
21121 Bed • 2 Bath
¥480,000Price

Unit
341 Bed • 2 Bath
¥670,000,000Price
This property is listed by Tokyo Portfolio.
Phone: +81 (0)3-5447-8700
Address: 5-15-12 Minami-azabu, Minato-ku, Tokyo
License number: Governor of Tokyo License (1) No. 107013 / Member of the Ibaraki Prefecture Chapter of the All Japan Real Estate Association / Member of the Tokyo Metropolitan Area Real Estate Fair Trading Council




















