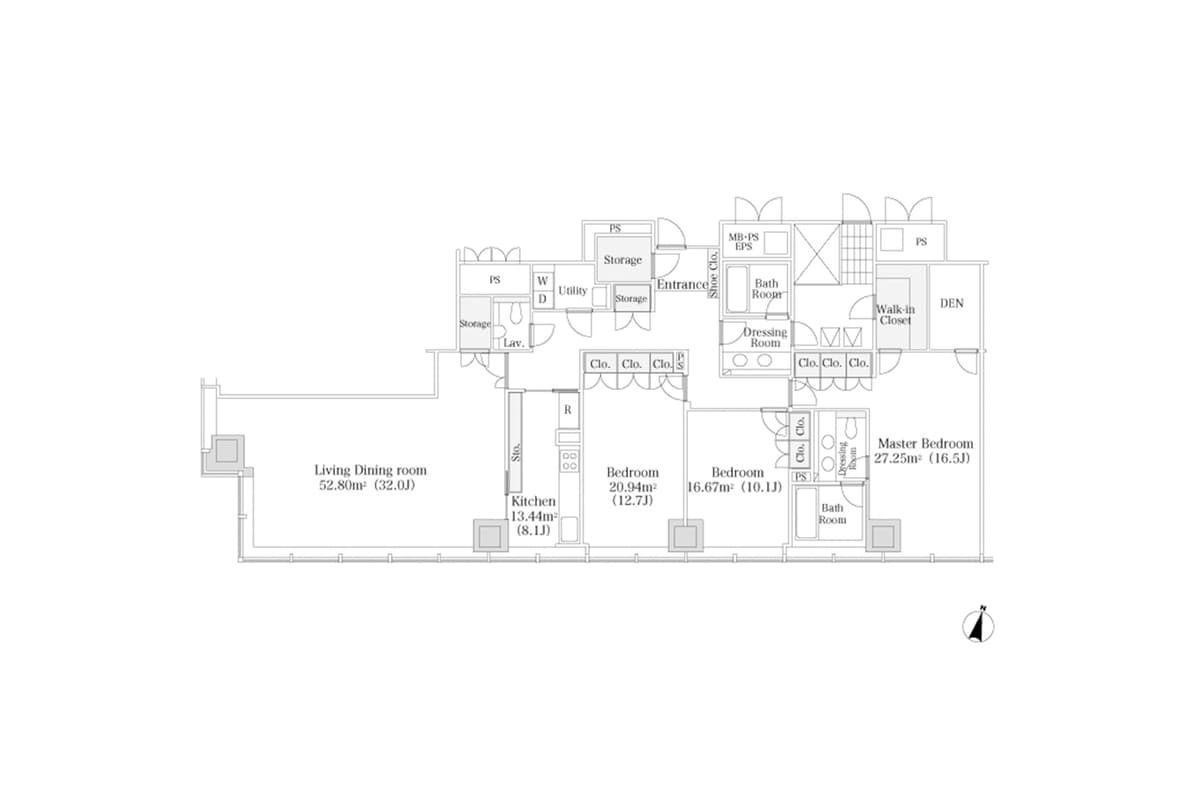
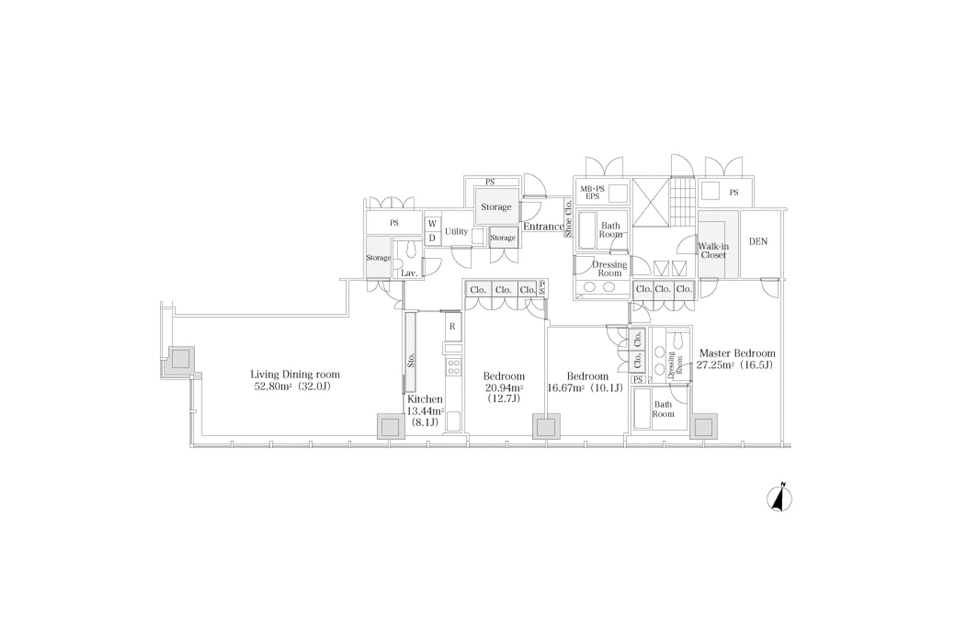
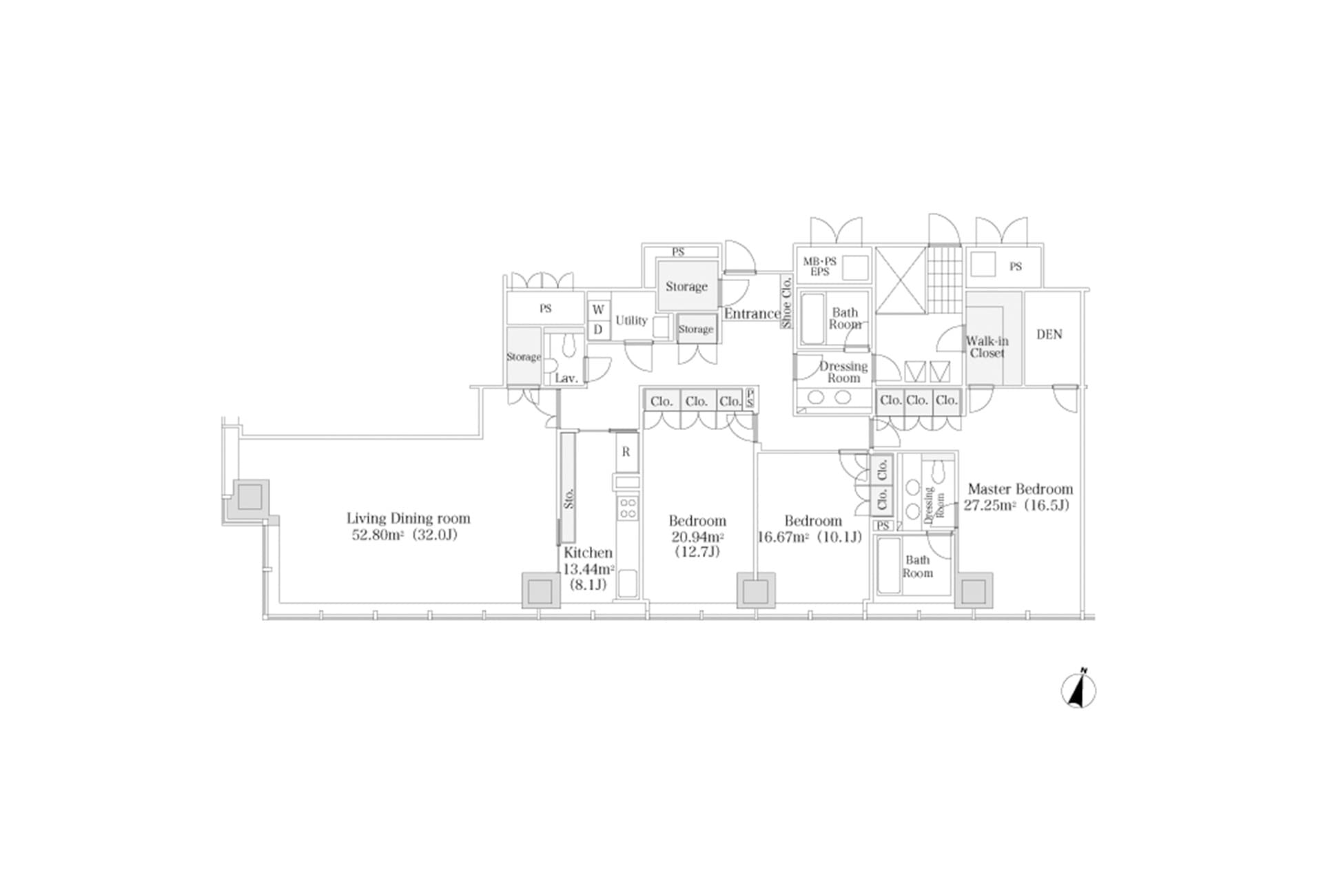
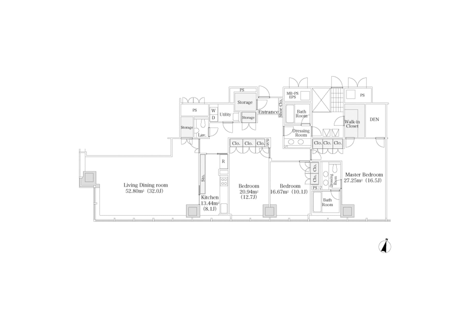
Rising high above the city on the 25th floor of La Tour Shibakoen II, this 201.39㎡ three-bedroom residence offers panoramic views of Tokyo Tower and the serene greenery of Shiba Park. The expansive living area invites natural light throughout the day, creating an elegant yet comfortable atmosphere perfect for entertaining or unwinding. Residents enjoy hotel-like concierge service, a private fitness room, and 24-hour security—luxury living refined to perfection. Located just three minutes from Shibakoen Station, this exclusive area combines modern convenience with classic Tokyo charm. With peaceful parks, international schools, and fine dining nearby, it’s ideal for global professionals and families seeking sophistication at the city’s vibrant core.
Listed by Tokyo Portfolio • Acting as intermediary
Listing updated: 2026-01-08
Around This Property
Shibakoen
3 min walk
- Mita
Floor Plans & Monthly Fees

¥1,800,000
Priceper month
Including management fee (¥0)¥0
•
Insurance (¥0)
3
Beds
1
Baths
201.89
m²
*This is just a guide and may not accurately reflect what the total upfront fees will be. Some management companies will have other unique fees not accounted for here. We will always explain the full breakdown of upfront costs.
**If you have pets and this is a pet friendly property, expect to pay at least one additional month in security deposit.

This property is listed by Tokyo Portfolio.
Phone: +81 (0)3-5447-8700
Address: 5-15-12 Minami-azabu, Minato-ku, Tokyo
License number: Governor of Tokyo License (1) No. 107013 / Member of the Ibaraki Prefecture Chapter of the All Japan Real Estate Association / Member of the Tokyo Metropolitan Area Real Estate Fair Trading Council










