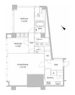
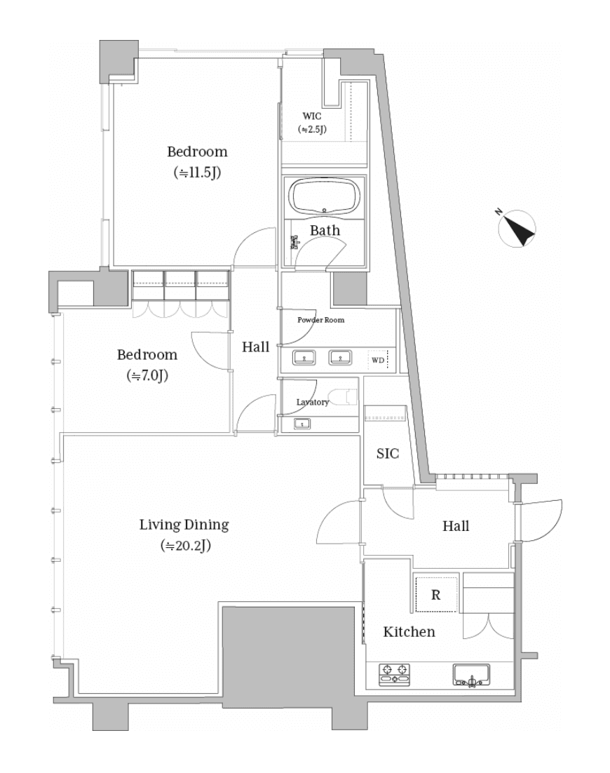
Welcome to unit 601 at Park Mansion Roppongi, a stunning 2LDK condo that perfectly blends comfort and functionality. Spanning 118.31 square meters, this sixth-floor residence features an open layout that invites natural light, creating a warm and inviting atmosphere. The modern system kitchen is designed for culinary enthusiasts, while the separate bathroom and toilet offer convenience for daily routines. Enjoy the luxury of a bidet toilet and air conditioning, ensuring comfort year-round. With amenities like autolock, an elevator, and a delivery box, your lifestyle is effortlessly supported. Located just a 5-minute walk from Roppongi Station, commuting is a breeze, making this unit an ideal sanctuary in the heart of the city.
Listed by Tokyo Portfolio • Acting as intermediary
Listing updated: 2026-04-29
Around This Property
Roppongi
5 min walk
- Oedo
- Hibiya
Roppongi-itchome
8 min walk
- Namboku
Floorplan


Payment Calculator
Property Price
Interest rate
The average interest rate for a 35-year fixed loan is 1.368%, while the average variable interest rate is 0.470%.
Loan term
Down payment (20%)¥0
Estimated closing fees (5-8%)
¥72,500,000 – ¥116,000,000
↳ Commission (3.3%) + ¥66,000¥47,916,000
TOTAL DUE AT CLOSE
¥72,500,000 – ¥116,000,000| Down payment (20%) | ¥0 |
| Estimated closing fees (5-8%) ↳ Commission (3.3%) + ¥66,000 | ¥72,500,000 – ¥116,000,000 ¥47,916,000 |
| TOTAL DUE AT CLOSE | ¥72,500,000 – ¥116,000,000 |
|---|
As some of these numbers are calculated using the government-assessed value of the property, the actual total upfront cost cannot be known. Generally speaking, we recommend clients prepare an additional 5–8% on top of the list price.
See here for more details
More Units in This Building

Park Mansion Roppongi
2008
Built
2
Units available
This property is listed by Tokyo Portfolio.
Phone: +81 (0)3-5447-8700
Address: 5-15-12 Minami-azabu, Minato-ku, Tokyo
License number: Governor of Tokyo License (1) No. 107013 / Member of the Ibaraki Prefecture Chapter of the All Japan Real Estate Association / Member of the Tokyo Metropolitan Area Real Estate Fair Trading Council










