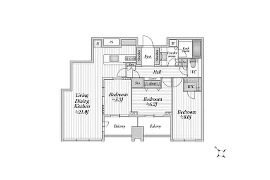
Rising high above Azabujuban, this elegant 3LDK residence offers a serene retreat with sweeping southwest views from its 19th-floor perch. A 12.5-meter wide span fills the interior with natural light, while the flexible layout allows the adjoining bedroom to open into a grand, expansive living space. Set just moments from Azabujuban Station, the neighborhood blends refined charm with everyday convenience. Trendy cafés, artisanal shops, and quiet parks create a lifestyle ideal for professionals, pet owners, and families seeking comfort and culture in equal measure. With pet-friendly features and exceptional sun exposure, this home elevates daily living.
Listed by Tokyo Portfolio • Acting as intermediary
Listing updated: 2025-12-11
Around This Property
Azabu-juban
4 min walk
- Oedo
Floorplan


Payment Calculator
Property Price
Interest rate
The average interest rate for a 35-year fixed loan is 1.368%, while the average variable interest rate is 0.470%.
Loan term
Down payment (20%)¥0
Estimated closing fees (5-8%)
¥23,750,000 – ¥38,000,000
↳ Commission (3.3%) + ¥66,000¥15,741,000
TOTAL DUE AT CLOSE
¥23,750,000 – ¥38,000,000| Down payment (20%) | ¥0 |
| Estimated closing fees (5-8%) ↳ Commission (3.3%) + ¥66,000 | ¥23,750,000 – ¥38,000,000 ¥15,741,000 |
| TOTAL DUE AT CLOSE | ¥23,750,000 – ¥38,000,000 |
|---|
As some of these numbers are calculated using the government-assessed value of the property, the actual total upfront cost cannot be known. Generally speaking, we recommend clients prepare an additional 5–8% on top of the list price.
See here for more details
More Units in This Building

City Tower Azabujuban
2009
Built
3
Units available
This property is listed by Tokyo Portfolio.
Phone: +81 (0)3-5447-8700
Address: 5-15-12 Minami-azabu, Minato-ku, Tokyo
License number: Governor of Tokyo License (1) No. 107013 / Member of the Ibaraki Prefecture Chapter of the All Japan Real Estate Association / Member of the Tokyo Metropolitan Area Real Estate Fair Trading Council










