










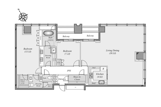
Rising above one of Tokyo’s most sought-after addresses, City Tower Azabujuban presents a stunning renovated 2LDK with 95.01㎡ of refined living space. The expansive LDK invites natural light to stream through wide windows, framing an unforgettable view of Tokyo Tower—a dazzling backdrop for both vibrant entertaining and serene evenings at home. Modern finishes and a thoughtfully designed layout balance sophistication with everyday comfort. Nestled in Azabujuban, the residence enjoys the charm of a historic neighborhood infused with cosmopolitan energy. Known for its boutique shops, gourmet dining, and cozy cafés, the area is beloved by international professionals and families alike. With leafy promenades, easy access to Roppongi and Hiroo, and an atmosphere that blends tradition with modern elegance, this home offers a lifestyle of both convenience and distinction.
Listed by Tokyo Portfolio • Acting as intermediary
Listing updated: 2025-08-17
Around This Property
Azabu-juban
4 min walk
- Oedo
Payment Calculator

Property Price
approx. ¥628,000,000
Interest rate
The average interest rate for a 35-year fixed loan is 1.368%, while the average variable interest rate is 0.470%.
Loan term
Down payment (20%)¥0
Commission (3.3% + ¥66,000)¥20,790,000
Estimated closing fees (4%)
¥25,120,000
TOTAL DUE AT CLOSE
¥45,910,000| Down payment (20%) | - | ¥0 |
| Commission (3.3% + ¥66,000) | ¥20,790,000 | ¥20,790,000 |
| Estimated closing fees (4%) | ¥25,120,000 | ¥25,120,000 |
| TOTAL DUE AT CLOSE | ¥45,910,000 | ¥45,910,000 |
|---|
More Units in This Building

City Tower Azabujuban
2009
Built
5
Units on sale
This property is listed by Tokyo Portfolio.
Phone: +81 (0)3-5447-8700
Address: 5-15-12 Minami-azabu, Minato-ku, Tokyo
License number: Governor of Tokyo License (1) No. 107013 / Member of the Ibaraki Prefecture Chapter of the All Japan Real Estate Association / Member of the Tokyo Metropolitan Area Real Estate Fair Trading Council




























