
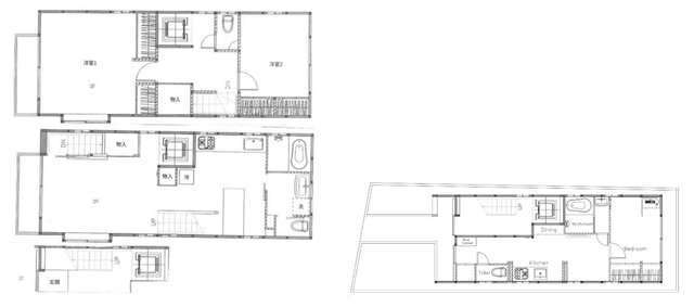
Tucked away in Akasaka 4 chome, this private house offers a rare sense of calm within central Tokyo. Thoughtfully designed interiors prioritize comfort and flow, creating inviting spaces for family life, quiet work, and relaxed entertaining. The home feels composed and secure, ideal for those seeking discretion alongside everyday practicality. Akasaka is a prestigious neighborhood defined by embassies, refined dining, and cultural landmarks. Popular restaurants, international schools, and business districts sit within easy reach, while residential streets remain peaceful. The area suits professionals, families, and global residents who value access, privacy, and long term livability. This Akasaka residence presents an exceptional opportunity to own a standalone home in Minato City.
Listed by Tokyo Portfolio • Acting as intermediary
Listing updated: 2025-12-17
Available Units
This property is listed by Tokyo Portfolio.
Phone: +81 (0)3-5447-8700
Address: 5-15-12 Minami-azabu, Minato-ku, Tokyo
License number: Governor of Tokyo License (1) No. 107013 / Member of the Ibaraki Prefecture Chapter of the All Japan Real Estate Association / Member of the Tokyo Metropolitan Area Real Estate Fair Trading Council












































