Price
¥1,028,000,000
¥15,280
Management fee
3
Beds
1
Baths
76.4
m²
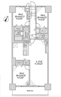
Welcome to unit 204 at Akodai Parkside Heights, a beautifully designed 3LDK condo that offers a perfect blend of comfort and functionality. Spanning 76.4 square meters, this inviting space features an open layout that seamlessly connects the living, dining, and kitchen areas, making it ideal for both relaxation and entertaining. Step onto your private balcony to enjoy fresh air and views, enhancing your daily living experience. The modern system kitchen is equipped for culinary adventures, while the spacious bedrooms provide a serene retreat at the end of the day. Convenience is key, with an elevator for easy access and dedicated car parking. Located just a 2-minute walk from Akodai Station on the Keio line, commuting is effortless, and you’ll appreciate the accessibility to nearby amenities. Experience a lifestyle of comfort and ease in this charming condo.
Listed by Tokyo Portfolio • Acting as intermediary
Listing updated: 2026-04-09
Around This Property
Sangubashi
12 min walk
- Odawara
Payment Calculator

Property Price
Interest rate
The average interest rate for a 35-year fixed loan is 1.368%, while the average variable interest rate is 0.470%.
Loan term
Down payment (20%)¥0
Estimated closing fees (5-8%)
¥51,400,000 – ¥82,240,000
↳ Commission (3.3%) + ¥66,000¥33,990,000
TOTAL DUE AT CLOSE
¥51,400,000 – ¥82,240,000| Down payment (20%) | ¥0 |
| Estimated closing fees (5-8%) ↳ Commission (3.3%) + ¥66,000 | ¥51,400,000 – ¥82,240,000 ¥33,990,000 |
| TOTAL DUE AT CLOSE | ¥51,400,000 – ¥82,240,000 |
|---|
As some of these numbers are calculated using the government-assessed value of the property, the actual total upfront cost cannot be known. Generally speaking, we recommend clients prepare an additional 5–8% on top of the list price.
See here for more details
This property is listed by Tokyo Portfolio.
Phone: +81 (0)3-5447-8700
Address: 5-15-12 Minami-azabu, Minato-ku, Tokyo
License number: Governor of Tokyo License (1) No. 107013 / Member of the Ibaraki Prefecture Chapter of the All Japan Real Estate Association / Member of the Tokyo Metropolitan Area Real Estate Fair Trading Council









