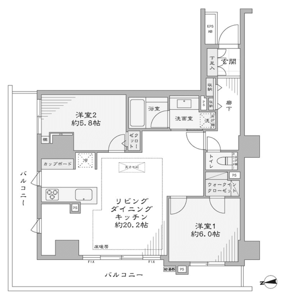
Welcome to unit 1101 at Ascot Park Nihonbashi Kodemmacho, a beautifully designed 3LDK+WIC condo that offers both comfort and functionality. Spanning 73.48 square meters on the 11th floor, this space is thoughtfully laid out to enhance daily living. Step inside to discover a bright and airy living area, seamlessly connecting to a private balcony that invites fresh air and natural light. The walk-in closet provides ample storage, ensuring your home remains organized and clutter-free. With amenities like autolock security and pet-friendly policies, this unit caters to modern lifestyles. Located just a 2-minute walk from Kodemmacho Station, commuting is a breeze, allowing you to enjoy the vibrant city life with ease. Experience the perfect blend of comfort and convenience in this exceptional condo.
Listed by Tokyo Portfolio • Acting as intermediary
Listing updated: 2026-04-07
Around This Property
Kodemmacho
2 min walk
- Hibiya
Floorplan


Payment Calculator
Property Price
Interest rate
The average interest rate for a 35-year fixed loan is 1.368%, while the average variable interest rate is 0.470%.
Loan term
Down payment (20%)¥0
Estimated closing fees (5-8%)
¥9,995,000 – ¥15,992,000
↳ Commission (3.3%) + ¥66,000¥6,662,700
TOTAL DUE AT CLOSE
¥9,995,000 – ¥15,992,000| Down payment (20%) | ¥0 |
| Estimated closing fees (5-8%) ↳ Commission (3.3%) + ¥66,000 | ¥9,995,000 – ¥15,992,000 ¥6,662,700 |
| TOTAL DUE AT CLOSE | ¥9,995,000 – ¥15,992,000 |
|---|
As some of these numbers are calculated using the government-assessed value of the property, the actual total upfront cost cannot be known. Generally speaking, we recommend clients prepare an additional 5–8% on top of the list price.
See here for more details
This property is listed by Tokyo Portfolio.
Phone: +81 (0)3-5447-8700
Address: 5-15-12 Minami-azabu, Minato-ku, Tokyo
License number: Governor of Tokyo License (1) No. 107013 / Member of the Ibaraki Prefecture Chapter of the All Japan Real Estate Association / Member of the Tokyo Metropolitan Area Real Estate Fair Trading Council










