












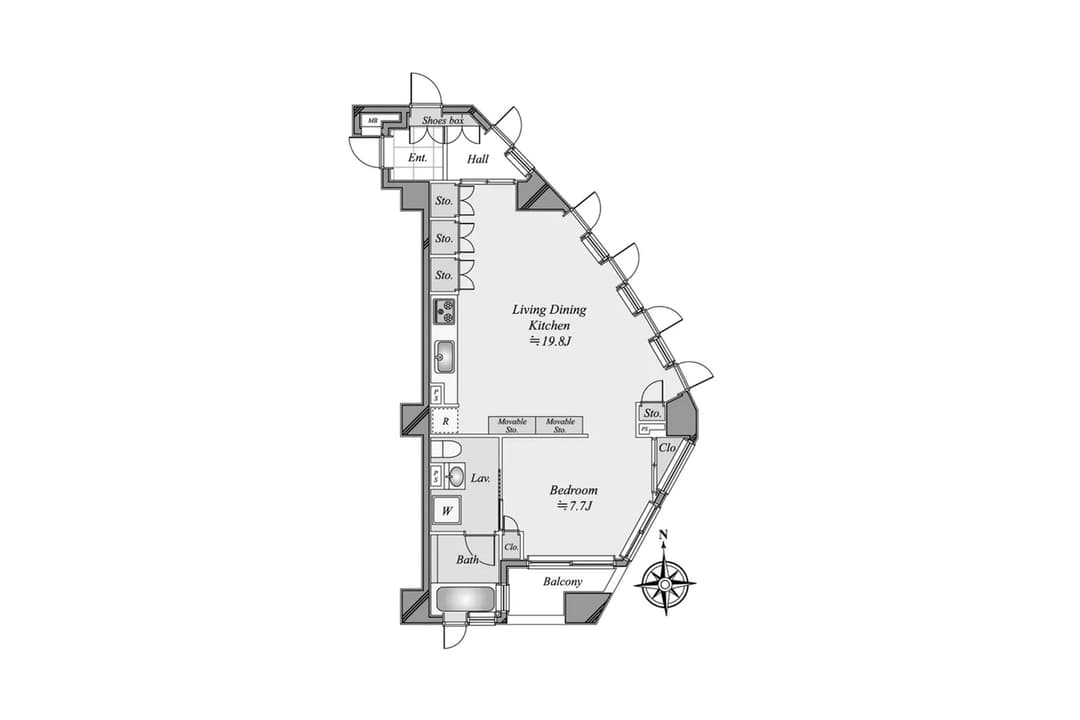
Perched on the 9th floor of D'Grance Nishiazabu High Valley, this sun-filled 1LDK corner residence spans 64.41㎡, offering bright, airy living through multiple windows and a well-ventilated layout. The 1620-type bathroom features its own window, blending comfort with natural light. With only two units per floor, privacy is assured, while the east-southeast orientation welcomes gentle morning sunlight, creating a serene retreat in the heart of the city. Situated just 500 meters from Roppongi Hills, Nishiazabu blends cosmopolitan vibrancy with quiet sophistication. Surrounded by stylish cafes, international restaurants, and art galleries, it suits professionals or couples seeking urban convenience paired with refined tranquility.
Listed by Tokyo Portfolio • Acting as intermediary
Listing updated: 2025-09-28
Around This Property
Roppongi
8 min walk
- Oedo
- Hibiya
Hiro-o
9 min walk
- Hibiya
The American School in Japan ELC
Ages 3-6 years | Walk 4 mins by foot
Nishimachi International School
Ages 5-14 years | Walk 6 mins by foot
The Montessori School of Tokyo (Forest Campus)
Ages 1-15 years | Walk 9 mins by foot
Payment Calculator

Property Price
approx. ¥250,000,000
Interest rate
The average interest rate for a 35-year fixed loan is 1.368%, while the average variable interest rate is 0.470%.
Loan term
Down payment (20%)¥0
Commission (3.3% + ¥66,000)¥8,316,000
Estimated closing fees (4%)
¥10,000,000
TOTAL DUE AT CLOSE
¥18,316,000| Down payment (20%) | - | ¥0 |
| Commission (3.3% + ¥66,000) | ¥8,316,000 | ¥8,316,000 |
| Estimated closing fees (4%) | ¥10,000,000 | ¥10,000,000 |
| TOTAL DUE AT CLOSE | ¥18,316,000 | ¥18,316,000 |
|---|
This property is listed by Tokyo Portfolio.
Phone: +81 (0)3-5447-8700
Address: 5-15-12 Minami-azabu, Minato-ku, Tokyo
License number: Governor of Tokyo License (1) No. 107013 / Member of the Ibaraki Prefecture Chapter of the All Japan Real Estate Association / Member of the Tokyo Metropolitan Area Real Estate Fair Trading Council



































