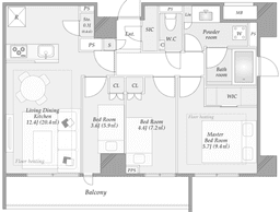
Welcome to unit 603 at Diana Court Ikeadayama Park, a beautifully designed 3LDK condo that offers a perfect blend of comfort and functionality. Spanning 62.11 sqm on the sixth floor, this space invites you to experience modern living at its finest. The open layout seamlessly connects the living, dining, and kitchen areas, creating an inviting atmosphere for both relaxation and entertaining. Enjoy the convenience of a separate bathroom and toilet, complete with a bidet for added comfort. A spacious walk-in closet provides ample storage, while the balcony offers a serene spot to unwind. Located just an 8-minute walk from Takanawadai station and 9 minutes from Shirokanedai stations, commuting is a breeze. With amenities like designated parking, high-speed internet, and pet-friendly policies, this unit is designed to enhance your daily life. Discover the perfect home where every detail supports your lifestyle.
Listed by Tokyo Portfolio • Acting as intermediary
Listing updated: 2026-02-19
Around This Property
Takanawadai
8 min walk
- Asakusa
Shirokanedai
9 min walk
- Mita
- Namboku
Floorplan


Payment Calculator
Property Price
Interest rate
The average interest rate for a 35-year fixed loan is 1.368%, while the average variable interest rate is 0.470%.
Loan term
Down payment (20%)¥0
Estimated closing fees (5-8%)
¥10,490,000 – ¥16,784,000
↳ Commission (3.3%) + ¥66,000¥6,989,400
TOTAL DUE AT CLOSE
¥10,490,000 – ¥16,784,000| Down payment (20%) | ¥0 |
| Estimated closing fees (5-8%) ↳ Commission (3.3%) + ¥66,000 | ¥10,490,000 – ¥16,784,000 ¥6,989,400 |
| TOTAL DUE AT CLOSE | ¥10,490,000 – ¥16,784,000 |
|---|
As some of these numbers are calculated using the government-assessed value of the property, the actual total upfront cost cannot be known. Generally speaking, we recommend clients prepare an additional 5–8% on top of the list price.
See here for more details
This property is listed by Tokyo Portfolio.
Phone: +81 (0)3-5447-8700
Address: 5-15-12 Minami-azabu, Minato-ku, Tokyo
License number: Governor of Tokyo License (1) No. 107013 / Member of the Ibaraki Prefecture Chapter of the All Japan Real Estate Association / Member of the Tokyo Metropolitan Area Real Estate Fair Trading Council






