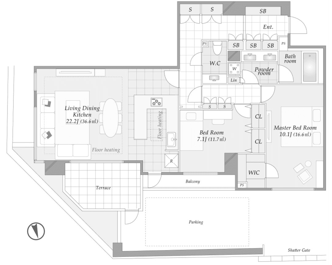
Welcome to unit 202, a spacious 100.62 sqm sanctuary on the second floor, where comfort meets functionality. This thoughtfully designed apartment features a generous layout, perfect for both relaxation and daily living. Enjoy the luxury of a walk-in closet, providing ample storage for your wardrobe. The separate bathroom and toilet enhance privacy, while the bidet toilet adds a touch of modern convenience. Step outside to your private terrace and balcony, ideal for morning coffee or evening relaxation. With amenities like internet access and car parking, this pet-friendly unit caters to all your lifestyle needs. Experience a harmonious blend of comfort and practicality in this inviting space.
Listed by Tokyo Portfolio • Acting as intermediary
Listing updated: 2026-04-07
Around This Property
Takanawadai
8 min walk
- Asakusa
Meguro
13 min walk
Yamanote- Mita
- Namboku
- Meguro
Shirokanedai
8 min walk
- Mita
- Namboku
Floorplan


Payment Calculator
Property Price
Interest rate
The average interest rate for a 35-year fixed loan is 1.368%, while the average variable interest rate is 0.470%.
Loan term
Down payment (20%)¥0
Estimated closing fees (5-8%)
¥18,900,000 – ¥30,240,000
↳ Commission (3.3%) + ¥66,000¥12,540,000
TOTAL DUE AT CLOSE
¥18,900,000 – ¥30,240,000| Down payment (20%) | ¥0 |
| Estimated closing fees (5-8%) ↳ Commission (3.3%) + ¥66,000 | ¥18,900,000 – ¥30,240,000 ¥12,540,000 |
| TOTAL DUE AT CLOSE | ¥18,900,000 – ¥30,240,000 |
|---|
As some of these numbers are calculated using the government-assessed value of the property, the actual total upfront cost cannot be known. Generally speaking, we recommend clients prepare an additional 5–8% on top of the list price.
See here for more details
This property is listed by Tokyo Portfolio.
Phone: +81 (0)3-5447-8700
Address: 5-15-12 Minami-azabu, Minato-ku, Tokyo
License number: Governor of Tokyo License (1) No. 107013 / Member of the Ibaraki Prefecture Chapter of the All Japan Real Estate Association / Member of the Tokyo Metropolitan Area Real Estate Fair Trading Council








