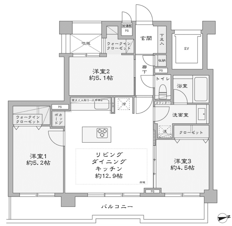
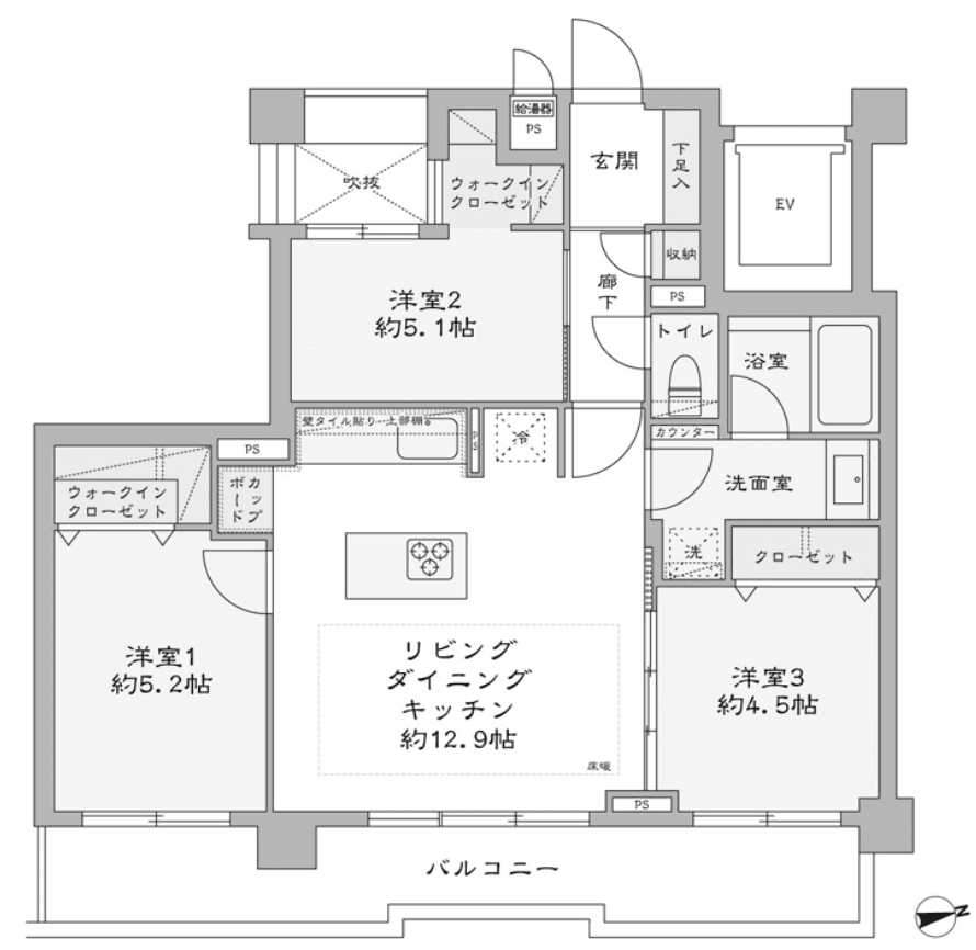
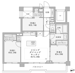
Welcome to unit 602 at Dom Kagurazaka, a stunning 3LDK condo that perfectly balances comfort and functionality. Spanning 62.66 sqm, this sixth-floor residence features an inviting layout that seamlessly integrates living, dining, and kitchen areas, creating an ideal space for both relaxation and entertaining. Step onto your private balcony to enjoy fresh air and city views. The unit is equipped with underfloor heating, ensuring warmth during colder months, while the walk-in closet offers ample storage for your belongings. With modern amenities such as internet access and an autolock system, daily life is both convenient and secure. Located just an 8-minute walk from Kagurazaka Station and within easy reach of Iidabashi Station, commuting is a breeze. Experience the perfect blend of urban living and serene comfort in this exceptional apartment.
Listed by Tokyo Portfolio • Acting as intermediary
Listing updated: 2026-01-21
Around This Property
Kagurazaka
8 min walk
- Tozai
Iidabashi
14 min walk
- ChuoSobuLocal
- Oedo
- Namboku
- Yurakucho
- Tozai
Edogawa
6 min walk
- Main
Payment Calculator

Property Price
Interest rate
The average interest rate for a 35-year fixed loan is 1.368%, while the average variable interest rate is 0.470%.
Loan term
Down payment (20%)¥0
Estimated closing fees (5-8%)
¥6,990,000 – ¥11,184,000
↳ Commission (3.3%) + ¥66,000¥4,679,400
TOTAL DUE AT CLOSE
¥6,990,000 – ¥11,184,000| Down payment (20%) | ¥0 |
| Estimated closing fees (5-8%) ↳ Commission (3.3%) + ¥66,000 | ¥6,990,000 – ¥11,184,000 ¥4,679,400 |
| TOTAL DUE AT CLOSE | ¥6,990,000 – ¥11,184,000 |
|---|
As some of these numbers are calculated using the government-assessed value of the property, the actual total upfront cost cannot be known. Generally speaking, we recommend clients prepare an additional 5–8% on top of the list price.
See here for more details
This property is listed by Tokyo Portfolio.
Phone: +81 (0)3-5447-8700
Address: 5-15-12 Minami-azabu, Minato-ku, Tokyo
License number: Governor of Tokyo License (1) No. 107013 / Member of the Ibaraki Prefecture Chapter of the All Japan Real Estate Association / Member of the Tokyo Metropolitan Area Real Estate Fair Trading Council










