
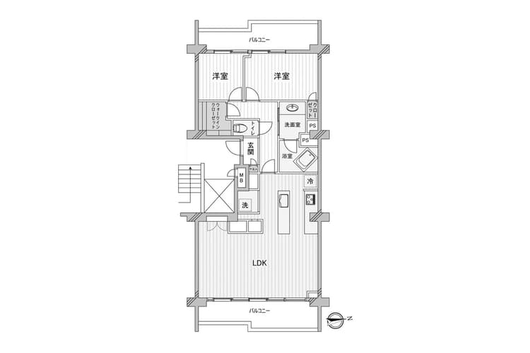
Welcome to Dorf Blumen, a charming 10-story condominium nestled in the heart of Minato City, Tokyo. Built in 1974, this well-maintained building features a distinctive architectural character that blends seamlessly with its surroundings. Residents enjoy convenient amenities, including an elevator and car parking, enhancing daily living. The neighborhood boasts a vibrant atmosphere, with easy access to essential services and leisure options. Just an 8-minute walk to Takanawadai Station and a mere 6 minutes to Shinagawa Station, commuting is a breeze. This area suits a diverse range of lifestyles, from busy professionals to families seeking a welcoming community. Experience the perfect blend of comfort and convenience at Dorf Blumen.
Listed by Tokyo Portfolio • Acting as intermediary
Listing updated: 2026-02-02
This property is listed by Tokyo Portfolio.
Phone: +81 (0)3-5447-8700
Address: 5-15-12 Minami-azabu, Minato-ku, Tokyo
License number: Governor of Tokyo License (1) No. 107013 / Member of the Ibaraki Prefecture Chapter of the All Japan Real Estate Association / Member of the Tokyo Metropolitan Area Real Estate Fair Trading Council