

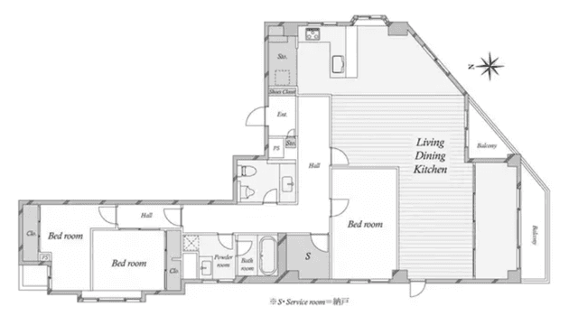
Eclair Nogizaka offers a refined urban retreat just moments from the city’s cultural core. Solidly built in reinforced concrete and steel, the residence combines enduring structure with the quiet assurance of professional management and secure auto-lock entry. Inside, the atmosphere is calm and private—an ideal canvas for a sophisticated Tokyo lifestyle, whether as a primary home or an elegant pied-à-terre. Located just a two-minute walk from Nogizaka Station, the neighborhood blends understated luxury with everyday ease. Roppongi’s museums, dining, and global energy are within walking distance, while leafy streets and nearby parks create balance. Perfect for professionals, couples, or small families seeking connectivity without sacrificing tranquility.
Listed by Tokyo Portfolio • Acting as intermediary
Listing updated: 2026-01-29
This property is listed by Tokyo Portfolio.
Phone: +81 (0)3-5447-8700
Address: 5-15-12 Minami-azabu, Minato-ku, Tokyo
License number: Governor of Tokyo License (1) No. 107013 / Member of the Ibaraki Prefecture Chapter of the All Japan Real Estate Association / Member of the Tokyo Metropolitan Area Real Estate Fair Trading Council