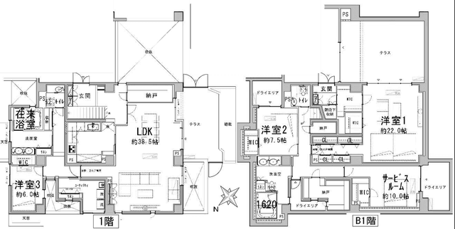
Welcome to Jingumae House, a charming three-story condo nestled in the vibrant Jingūmae neighborhood of Shibuya. Built in 1992, this residential gem features a modern architectural character that blends seamlessly with its surroundings. The building houses just six units, ensuring a cozy and intimate atmosphere for residents. Conveniently located just a three-minute walk from Omote-sando Station, Jingumae House offers easy access to Tokyo's extensive metro system. The neighborhood is known for its trendy boutiques, art galleries, and lively cafes, making it ideal for those who appreciate a dynamic urban lifestyle. With amenities such as auto-lock security, an elevator, and car parking, this residence provides both comfort and convenience for its residents.
Listed by Tokyo Portfolio • Acting as intermediary
Listing updated: 2026-02-12
Available Units
Around This Property
Omote-sando
3 min walk
- Hanzomon
- Chiyoda
- Ginza
This property is listed by Tokyo Portfolio.
Phone: +81 (0)3-5447-8700
Address: 5-15-12 Minami-azabu, Minato-ku, Tokyo
License number: Governor of Tokyo License (1) No. 107013 / Member of the Ibaraki Prefecture Chapter of the All Japan Real Estate Association / Member of the Tokyo Metropolitan Area Real Estate Fair Trading Council







