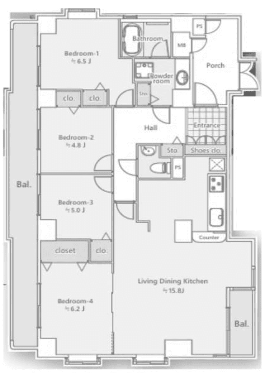
Welcome to unit 701 at Lions Station Plaza Ojima, a spacious 4LDK condo that redefines comfort and functionality. Spanning 100.91 square meters, this seventh-floor residence offers a thoughtful layout designed for modern living. Step inside to discover a harmonious flow between living spaces, perfect for both relaxation and entertaining. The inviting balcony extends your living area outdoors, allowing you to enjoy fresh air and city views. With the convenience of an autolock system, security is prioritized, giving you peace of mind. Just a one-minute walk to Ojima Station on the Toei Shinjuku line, commuting becomes effortless, enhancing your daily life in this vibrant community.
Listed by Tokyo Portfolio • Acting as intermediary
Listing updated: 2026-04-09
Around This Property
Payment Calculator

Property Price
Interest rate
The average interest rate for a 35-year fixed loan is 1.368%, while the average variable interest rate is 0.470%.
Loan term
Down payment (20%)¥0
Estimated closing fees (5-8%)
¥4,390,000 – ¥7,024,000
↳ Commission (3.3%) + ¥66,000¥2,963,400
TOTAL DUE AT CLOSE
¥4,390,000 – ¥7,024,000| Down payment (20%) | ¥0 |
| Estimated closing fees (5-8%) ↳ Commission (3.3%) + ¥66,000 | ¥4,390,000 – ¥7,024,000 ¥2,963,400 |
| TOTAL DUE AT CLOSE | ¥4,390,000 – ¥7,024,000 |
|---|
As some of these numbers are calculated using the government-assessed value of the property, the actual total upfront cost cannot be known. Generally speaking, we recommend clients prepare an additional 5–8% on top of the list price.
See here for more details
This property is listed by Tokyo Portfolio.
Phone: +81 (0)3-5447-8700
Address: 5-15-12 Minami-azabu, Minato-ku, Tokyo
License number: Governor of Tokyo License (1) No. 107013 / Member of the Ibaraki Prefecture Chapter of the All Japan Real Estate Association / Member of the Tokyo Metropolitan Area Real Estate Fair Trading Council





