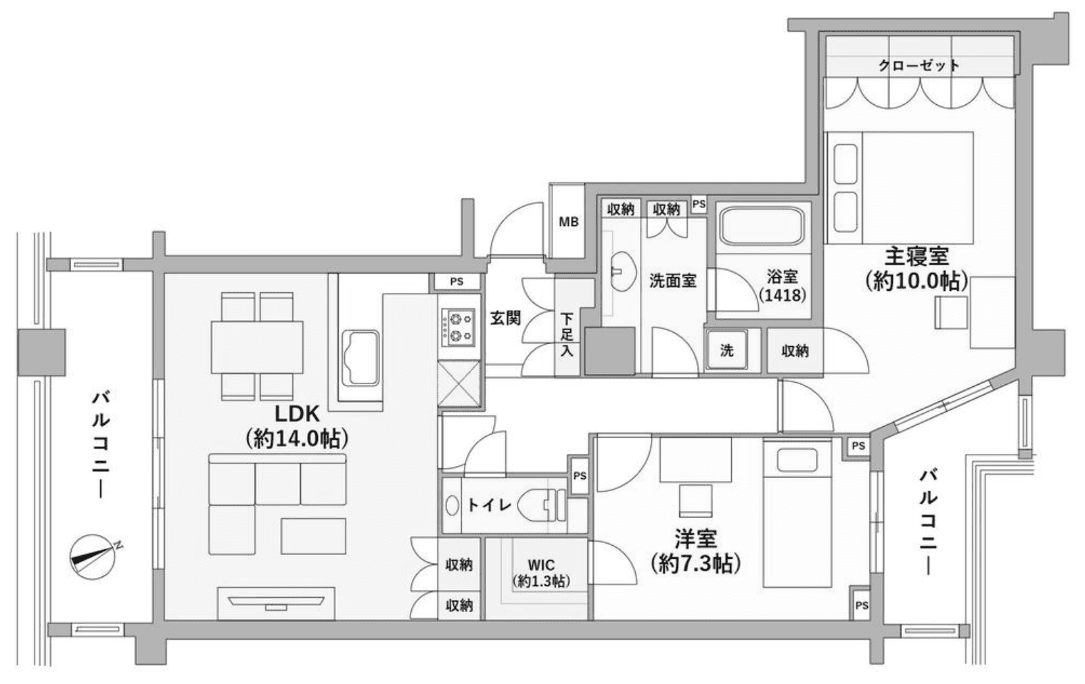
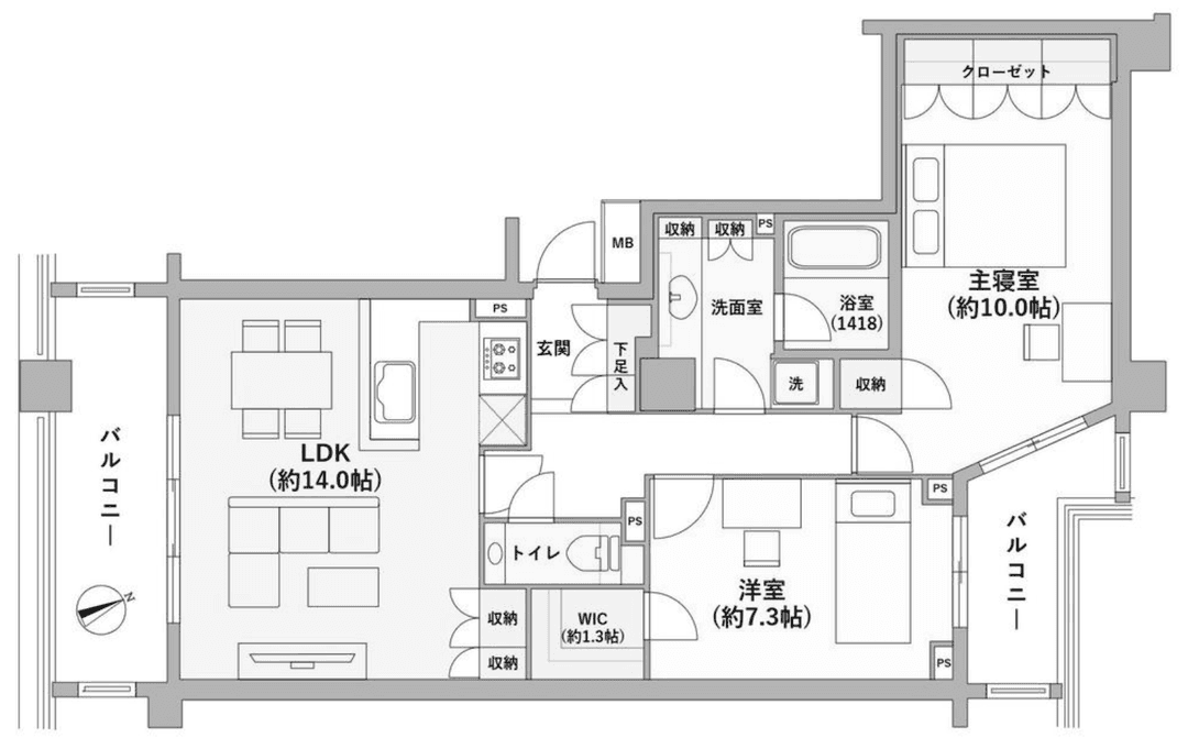
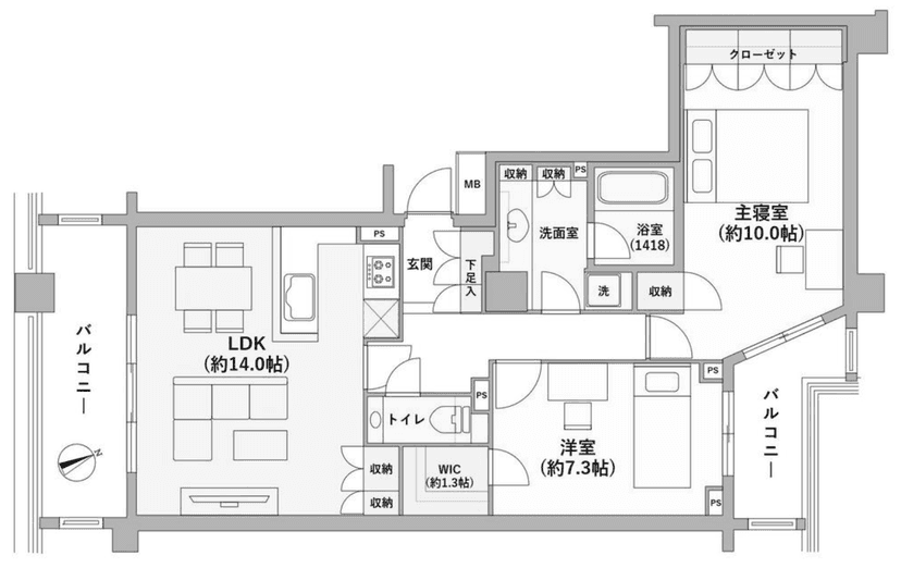
Welcome to the 3rd floor of Park Court Minamiaoyama Hilltop Residence, where modern living meets comfort in this spacious 2LDK condo. Spanning 79.12 sqm, the layout is thoughtfully designed to enhance daily life, featuring a multi-side balcony that invites natural light and fresh air into your home. Enjoy the convenience of a separate bathroom and toilet, ensuring privacy and functionality. The walk-in closet provides ample storage, while the elegant flooring adds a touch of sophistication. Pet lovers will appreciate the pet-friendly policy, allowing both cats and dogs to feel at home. Located just a 14-minute walk from Hiro-o Station, this residence offers easy access to the city while providing a serene retreat. Experience the perfect blend of comfort and convenience in this exceptional living space.
Listed by Tokyo Portfolio • Acting as intermediary
Listing updated: 2026-02-07
Around This Property
Hiro-o
14 min walk
- Hibiya
International School of the Sacred Heart
Ages 3-18 years | Walk 9 mins by foot
Payment Calculator

Property Price
Interest rate
The average interest rate for a 35-year fixed loan is 1.368%, while the average variable interest rate is 0.470%.
Loan term
Down payment (20%)¥0
Estimated closing fees (5-8%)
¥13,400,000 – ¥21,440,000
↳ Commission (3.3%) + ¥66,000¥8,910,000
TOTAL DUE AT CLOSE
¥13,400,000 – ¥21,440,000| Down payment (20%) | ¥0 |
| Estimated closing fees (5-8%) ↳ Commission (3.3%) + ¥66,000 | ¥13,400,000 – ¥21,440,000 ¥8,910,000 |
| TOTAL DUE AT CLOSE | ¥13,400,000 – ¥21,440,000 |
|---|
As some of these numbers are calculated using the government-assessed value of the property, the actual total upfront cost cannot be known. Generally speaking, we recommend clients prepare an additional 5–8% on top of the list price.
See here for more details
More Units in This Building

Park Court Minamiaoyama Hilltop Residence
2001
Built
3
Units available
This property is listed by Tokyo Portfolio.
Phone: +81 (0)3-5447-8700
Address: 5-15-12 Minami-azabu, Minato-ku, Tokyo
License number: Governor of Tokyo License (1) No. 107013 / Member of the Ibaraki Prefecture Chapter of the All Japan Real Estate Association / Member of the Tokyo Metropolitan Area Real Estate Fair Trading Council












