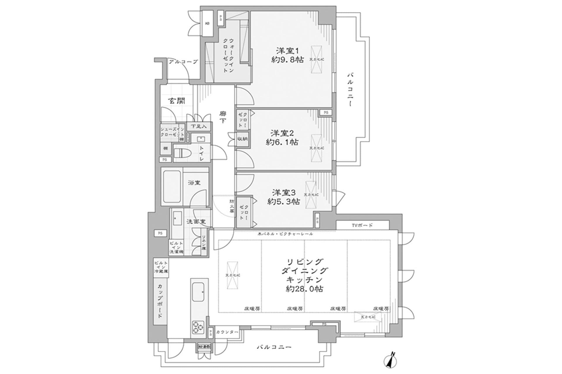
In the prestigious Jingumae 6-chome address, this renovated 3LDK at Park House Jingumae combines refined design with timeless charm. The 112.34㎡ southeast-corner layout bathes in natural light, while the expansive living-dining space with floor heating invites both elegant entertaining and relaxed family moments. Pet-friendly policies allow your four-legged companions to share in this urban sanctuary. Nestled between Omotesando and Yoyogi Park, the neighborhood blends high-end fashion, art galleries, and gourmet dining with pockets of lush greenery. Ideal for creative professionals, style-conscious couples, and families, it offers a rare balance—vibrant city living with a calm, residential atmosphere steeped in Tokyo’s cultural heart.
Listed by Tokyo Portfolio • Acting as intermediary
Listing updated: 2025-08-11
Around This Property
Meiji-jingumae
2 min walk
- Chiyoda
- Fukutoshin
Harajuku
5 min walk
Yamanote
Payment Calculator

Property Price
Interest rate
The average interest rate for a 35-year fixed loan is 1.368%, while the average variable interest rate is 0.470%.
Loan term
Down payment (20%)¥0
Estimated closing fees (5-8%)
¥27,400,000 – ¥43,840,000
↳ Commission (3.3%) + ¥66,000¥18,150,000
TOTAL DUE AT CLOSE
¥27,400,000 – ¥43,840,000| Down payment (20%) | ¥0 |
| Estimated closing fees (5-8%) ↳ Commission (3.3%) + ¥66,000 | ¥27,400,000 – ¥43,840,000 ¥18,150,000 |
| TOTAL DUE AT CLOSE | ¥27,400,000 – ¥43,840,000 |
|---|
As some of these numbers are calculated using the government-assessed value of the property, the actual total upfront cost cannot be known. Generally speaking, we recommend clients prepare an additional 5–8% on top of the list price.
See here for more details
This property is listed by Tokyo Portfolio.
Phone: +81 (0)3-5447-8700
Address: 5-15-12 Minami-azabu, Minato-ku, Tokyo
License number: Governor of Tokyo License (1) No. 107013 / Member of the Ibaraki Prefecture Chapter of the All Japan Real Estate Association / Member of the Tokyo Metropolitan Area Real Estate Fair Trading Council









