Welcome to Park Tower Harumi, a striking 48-story condominium completed in 2019. This modern architectural marvel features a sleek design that harmonizes with its vibrant surroundings. With 1,076 thoughtfully designed units, residents enjoy a sense of community while benefiting from an array of shared amenities, including bike, car, and motorcycle parking. Nestled in the heart of Chuo City, the neighborhood offers a blend of urban convenience and serene living. Residents can explore nearby parks, local shops, and dining options, making it an ideal location for those seeking a balanced lifestyle. Park Tower Harumi is perfect for individuals and families who appreciate contemporary living in a dynamic environment.
Listed by Tokyo Portfolio • Acting as intermediary
Listing updated: 2026-04-23
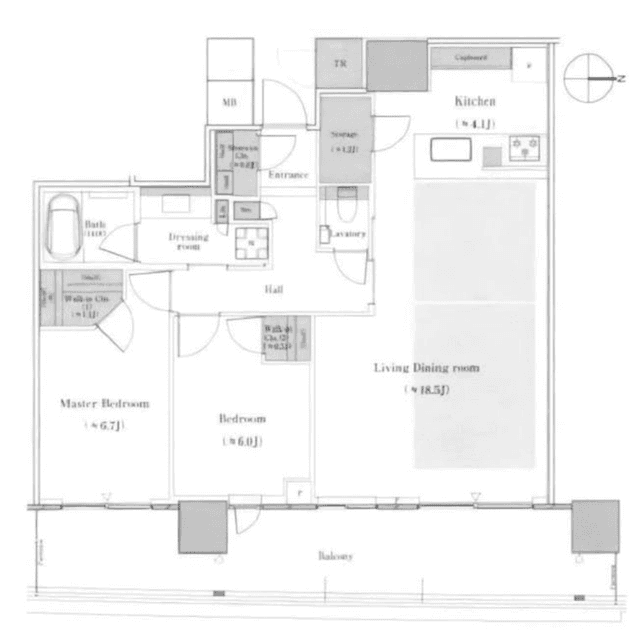
Available Units
Around This Property
This property is listed by Tokyo Portfolio.
Phone: +81 (0)3-5447-8700
Address: 5-15-12 Minami-azabu, Minato-ku, Tokyo
License number: Governor of Tokyo License (1) No. 107013 / Member of the Ibaraki Prefecture Chapter of the All Japan Real Estate Association / Member of the Tokyo Metropolitan Area Real Estate Fair Trading Council









