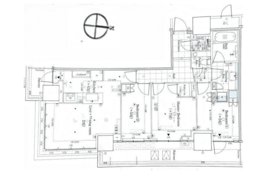
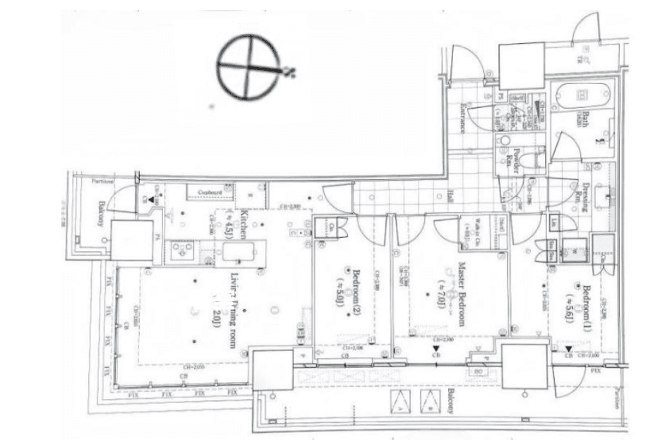
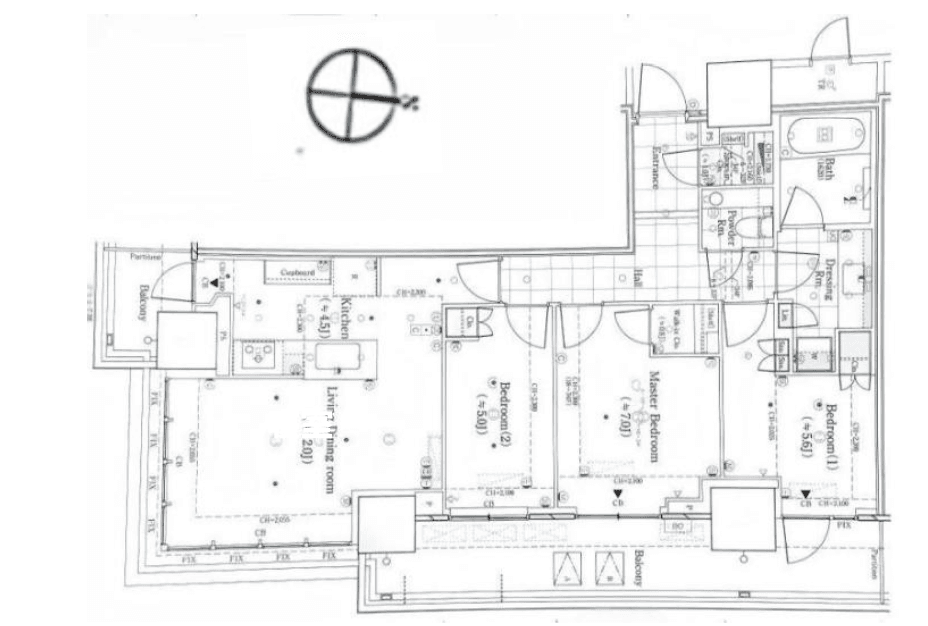
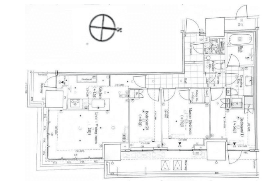
Positioned on the 31st floor of Park Tower Nishi-Shinjuku, this three-bedroom residence offers 80.7 square meters of refined living with a south-facing orientation. Sunlight fills the LDK throughout the day, flowing seamlessly onto a generous 18.49 square meter balcony ideal for open-air dining. A well-planned layout with three rooms and a modern bathroom supports comfortable family life and flexible work-from-home needs. Nishi-Shinjuku is a polished urban neighborhood defined by landmark towers, excellent transport access, and daily convenience. Cafés, international dining, and Shinjuku Central Park create a balanced environment suited to professionals and families seeking space, connectivity, and long-term value.
Listed by Tokyo Portfolio • Acting as intermediary
Listing updated: 2026-01-13
Around This Property
Nishi-shinjuku-gochome
6 min walk
- Oedo
Nishi-shinjuku
10 min walk
- Marunouchi
Payment Calculator

Property Price
Interest rate
The average interest rate for a 35-year fixed loan is 1.368%, while the average variable interest rate is 0.470%.
Loan term
Down payment (20%)¥0
Estimated closing fees (5-8%)
¥14,750,000 – ¥23,600,000
↳ Commission (3.3%) + ¥66,000¥9,801,000
TOTAL DUE AT CLOSE
¥14,750,000 – ¥23,600,000| Down payment (20%) | ¥0 |
| Estimated closing fees (5-8%) ↳ Commission (3.3%) + ¥66,000 | ¥14,750,000 – ¥23,600,000 ¥9,801,000 |
| TOTAL DUE AT CLOSE | ¥14,750,000 – ¥23,600,000 |
|---|
As some of these numbers are calculated using the government-assessed value of the property, the actual total upfront cost cannot be known. Generally speaking, we recommend clients prepare an additional 5–8% on top of the list price.
See here for more details
This property is listed by Tokyo Portfolio.
Phone: +81 (0)3-5447-8700
Address: 5-15-12 Minami-azabu, Minato-ku, Tokyo
License number: Governor of Tokyo License (1) No. 107013 / Member of the Ibaraki Prefecture Chapter of the All Japan Real Estate Association / Member of the Tokyo Metropolitan Area Real Estate Fair Trading Council








