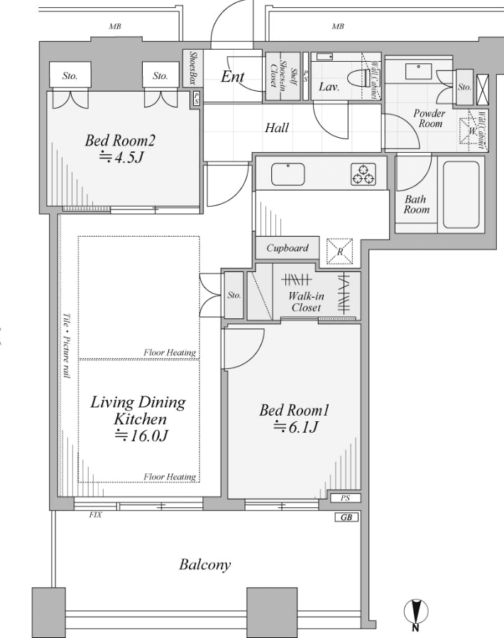
Soaring above the waterfront on the 33rd floor, this 2LDK residence in Shibaura Island Cape Tower offers 64 square meters of refined living with generous storage and an expansive 11.94 square meter balcony. Floor heating warms the living space, while a walk-in closet and shoe-in closet keep daily life organized. High-rise views stretch across the bay, creating a sense of openness and calm rarely matched in Tokyo. Located in Shibaura, Minato, the area is defined by wide promenades, canalside cafés, and a strong residential community. Popular with professionals, couples, and families, it balances tranquility with easy access to central Tokyo via Tamachi and nearby rail lines.
Listed by Tokyo Portfolio • Acting as intermediary
Listing updated: 2026-01-06
Around This Property
Tamachi
14 min walk
Keihin Tohoku Negishi
Yamanote
Payment Calculator

Property Price
Interest rate
The average interest rate for a 35-year fixed loan is 1.368%, while the average variable interest rate is 0.470%.
Loan term
Down payment (20%)¥0
Estimated closing fees (5-8%)
¥6,990,000 – ¥11,184,000
↳ Commission (3.3%) + ¥66,000¥4,679,400
TOTAL DUE AT CLOSE
¥6,990,000 – ¥11,184,000| Down payment (20%) | ¥0 |
| Estimated closing fees (5-8%) ↳ Commission (3.3%) + ¥66,000 | ¥6,990,000 – ¥11,184,000 ¥4,679,400 |
| TOTAL DUE AT CLOSE | ¥6,990,000 – ¥11,184,000 |
|---|
As some of these numbers are calculated using the government-assessed value of the property, the actual total upfront cost cannot be known. Generally speaking, we recommend clients prepare an additional 5–8% on top of the list price.
See here for more details
More Units in This Building

Shibaura Island Cape Tower
2006
Built
12
Units available

Unit
461 Bed • 3 Bath
¥229,990,000Price

Unit
45061 Bed • 2 Bath
¥254,800,000Price

Unit
36131 Bed • 1 Bath
¥142,000,000Price

Unit
46121 Bed • 3 Bath
¥269,900,000Price

Unit
32061 Bed • 3 Bath
¥218,000,000Price

Unit
41131 Bed • 2 Bath
¥248,000,000Price

Unit
35151 Bed • 3 Bath
¥402,000Price

Unit
48181 Bed • 3 Bath
¥418,000,000Price

Unit
32121 Bed • 3 Bath
¥248,000,000Price

Unit
33F1 Bed • 2 Bath
¥168,000,000Price

Unit
46051 Bed • 3 Bath
¥259,800,000Price

Unit
34052 Bed • 3 Bath
¥249,800,000Price
This property is listed by Tokyo Portfolio.
Phone: +81 (0)3-5447-8700
Address: 5-15-12 Minami-azabu, Minato-ku, Tokyo
License number: Governor of Tokyo License (1) No. 107013 / Member of the Ibaraki Prefecture Chapter of the All Japan Real Estate Association / Member of the Tokyo Metropolitan Area Real Estate Fair Trading Council














