
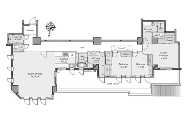
Discover refined living at Sunwood Shoto, where contemporary design meets the serene charm of one of Tokyo’s most exclusive neighborhoods. This elegant residence offers spacious interiors bathed in natural light, with carefully crafted finishes that create a sense of understated luxury. Large windows frame peaceful views, while the layout is ideal for both quiet evenings and sophisticated entertaining. Located just moments from Yoyogi-Koen Station, the property offers unmatched access to the lush expanse of Yoyogi Park—perfect for morning jogs, weekend picnics, or seasonal festivals. Shoto’s leafy streets, upscale dining, and cultural venues make it a haven for professionals and families seeking a tranquil yet connected lifestyle.
Listed by Tokyo Portfolio • Acting as intermediary
Listing updated: 2025-08-11
Available Units
This property is listed by Tokyo Portfolio.
Phone: +81 (0)3-5447-8700
Address: 5-15-12 Minami-azabu, Minato-ku, Tokyo
License number: Governor of Tokyo License (1) No. 107013 / Member of the Ibaraki Prefecture Chapter of the All Japan Real Estate Association / Member of the Tokyo Metropolitan Area Real Estate Fair Trading Council


















