
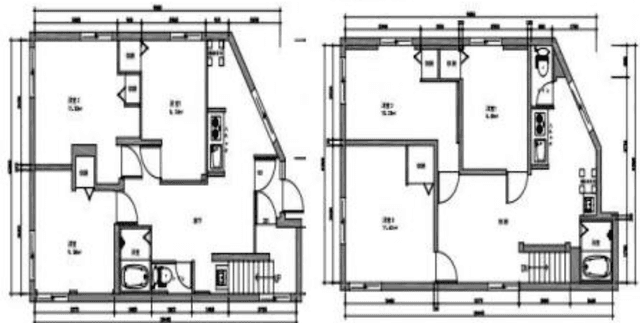
Situated in Shimoochiai, Shinjuku City, this private house in the Takadanobaba area offers a balanced blend of residential calm and urban accessibility. Thoughtfully planned interiors support comfortable daily living, with flexible rooms suited to family life, remote work, or creative pursuits. The home feels grounded and practical, ideal for long term residence within central Tokyo. Takadanobaba is a lively, well connected neighborhood known for its universities, local eateries, and everyday convenience. Train access links quickly to major city hubs, while nearby parks and schools create a welcoming environment. The area suits professionals, academics, and families seeking energy paired with livability. This Takadanobaba house presents a rare opportunity for independent living in Shinjuku.
Listed by Tokyo Portfolio • Acting as intermediary
Listing updated: 2025-12-17
Available Units
This property is listed by Tokyo Portfolio.
Phone: +81 (0)3-5447-8700
Address: 5-15-12 Minami-azabu, Minato-ku, Tokyo
License number: Governor of Tokyo License (1) No. 107013 / Member of the Ibaraki Prefecture Chapter of the All Japan Real Estate Association / Member of the Tokyo Metropolitan Area Real Estate Fair Trading Council

























