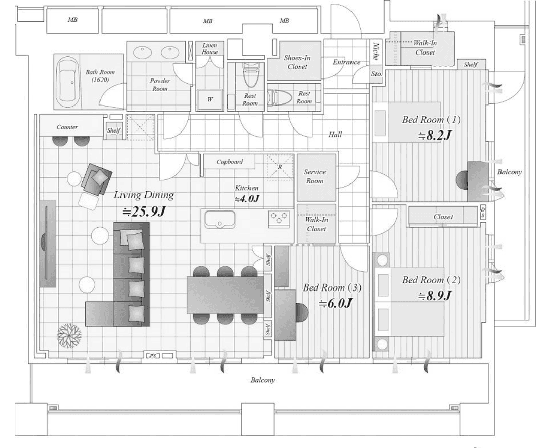
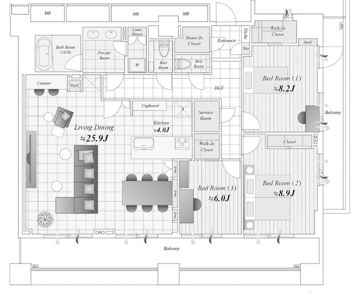
Welcome to unit 907 at Terrace Shibuya Mitake, a spacious 127.26 sqm condo designed for modern living. This 3LDK layout offers a harmonious blend of comfort and functionality, perfect for both relaxation and daily activities. Step inside to discover a thoughtfully designed interior featuring a walk-in closet, ideal for organized living. The separate bathroom and toilet enhance privacy, while the bidet-toilet adds a touch of luxury. Enjoy cooking in a kitchen equipped with a dishwasher and a reheating function, making meal prep effortless. The inviting balcony provides a serene outdoor space, perfect for unwinding after a busy day. Pet-friendly amenities ensure your furry companions are welcome too. Located just a 2-minute walk from Shibuya station, you have unparalleled access to multiple train lines, making commuting a breeze. Experience the perfect blend of convenience and comfort in this exceptional apartment.
Listed by Tokyo Portfolio • Acting as intermediary
Listing updated: 2026-03-21
Around This Property
Shibuya
2 min walk
- ShonanShinjuku
Yamanote- Saikyo
- Inokashira
- Ginza
- Fukutoshin
- Hanzomon
- Den En Toshi
- Toyoko
The British School Tokyo (Shibuya)
Ages 3-18 years | Walk 4 mins by foot
Payment Calculator

Property Price
Interest rate
The average interest rate for a 35-year fixed loan is 1.368%, while the average variable interest rate is 0.470%.
Loan term
Down payment (20%)¥0
Estimated closing fees (5-8%)
¥32,900,000 – ¥52,640,000
↳ Commission (3.3%) + ¥66,000¥21,780,000
TOTAL DUE AT CLOSE
¥32,900,000 – ¥52,640,000| Down payment (20%) | ¥0 |
| Estimated closing fees (5-8%) ↳ Commission (3.3%) + ¥66,000 | ¥32,900,000 – ¥52,640,000 ¥21,780,000 |
| TOTAL DUE AT CLOSE | ¥32,900,000 – ¥52,640,000 |
|---|
As some of these numbers are calculated using the government-assessed value of the property, the actual total upfront cost cannot be known. Generally speaking, we recommend clients prepare an additional 5–8% on top of the list price.
See here for more details
More Units in This Building

Terrace Shibuya Mitake
2012
Built
2
Units available
This property is listed by Tokyo Portfolio.
Phone: +81 (0)3-5447-8700
Address: 5-15-12 Minami-azabu, Minato-ku, Tokyo
License number: Governor of Tokyo License (1) No. 107013 / Member of the Ibaraki Prefecture Chapter of the All Japan Real Estate Association / Member of the Tokyo Metropolitan Area Real Estate Fair Trading Council




























