Welcome to The Park House Omori Tower, a modern condominium located in the vibrant Ota-ku district of Tokyo. Completed in 2024, this 24-floor building showcases contemporary architectural design, offering residents a stylish and comfortable living environment. With 104 thoughtfully designed units, the building features amenities such as an autolock system, security guard, and a monitor intercom for added peace of mind. The surrounding neighborhood is lively and well-connected, with the Omori Station just a 3-minute walk away, providing easy access to the Keihin-Tohoku line. Residents can enjoy nearby parks, local shops, and dining options, making it an ideal location for those who appreciate urban convenience and community spirit. The Park House Omori Tower is perfect for individuals and families seeking a balanced lifestyle in a dynamic area.
Listed by Tokyo Portfolio • Acting as intermediary
Listing updated: 2026-03-12
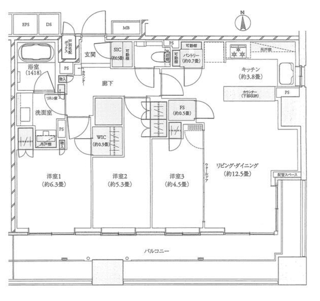
Available Units
Around This Property
Omorikaigan
9 min walk
- Main
Omori
3 min walk
Keihin Tohoku Negishi
This property is listed by Tokyo Portfolio.
Phone: +81 (0)3-5447-8700
Address: 5-15-12 Minami-azabu, Minato-ku, Tokyo
License number: Governor of Tokyo License (1) No. 107013 / Member of the Ibaraki Prefecture Chapter of the All Japan Real Estate Association / Member of the Tokyo Metropolitan Area Real Estate Fair Trading Council

