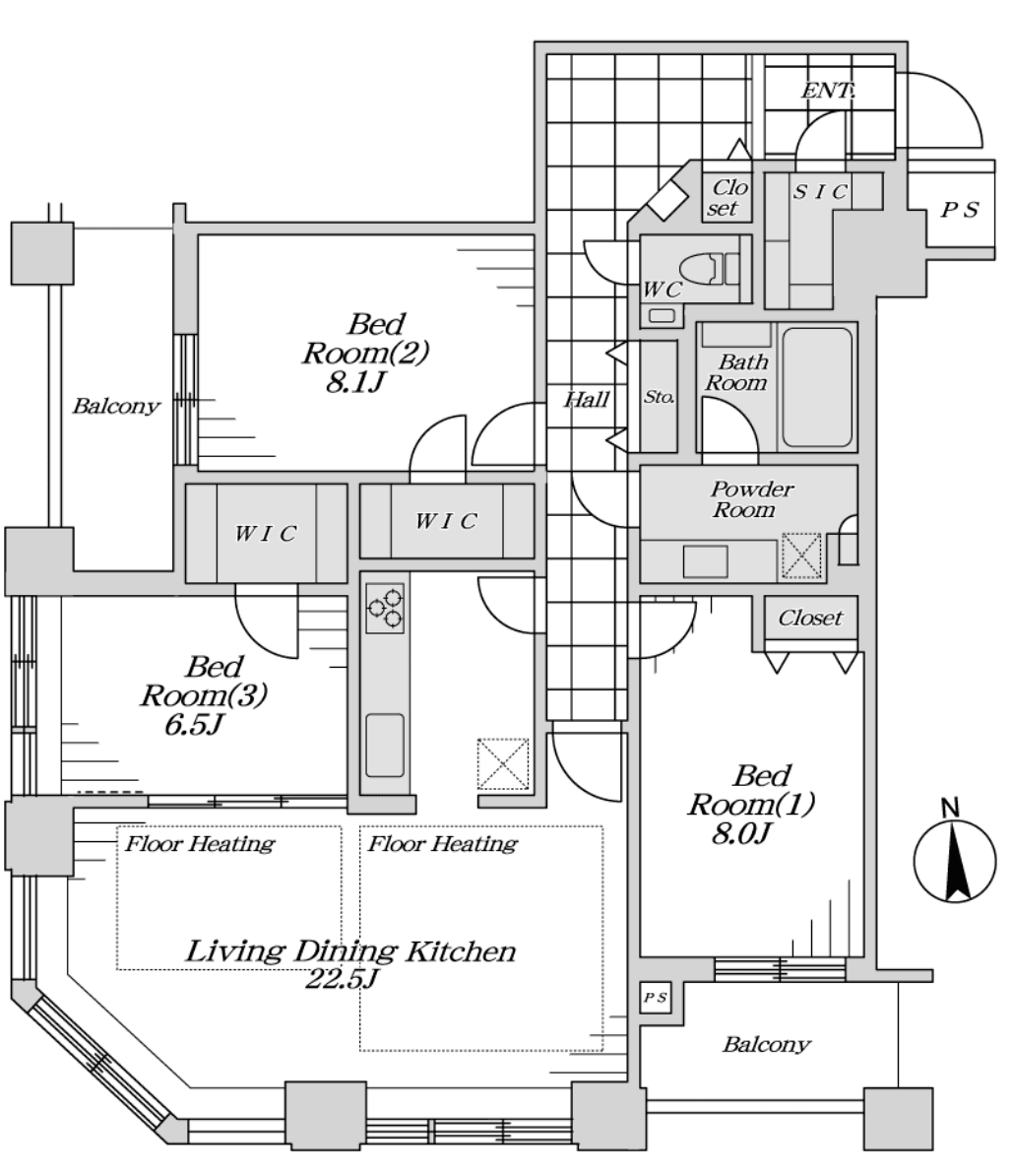
Welcome to unit 3107, a stunning 108.44 sqm sanctuary perched on the 31st floor. This spacious apartment offers a harmonious blend of comfort and functionality, designed to elevate your daily living experience. Step inside to discover an inviting layout that seamlessly connects living, dining, and kitchen areas, perfect for both relaxation and entertaining. The walk-in closet provides ample storage, ensuring your space remains organized and clutter-free. Enjoy the luxury of a separate bathroom and toilet, along with a modern bidet for added convenience. Step out onto your private balcony, where you can savor breathtaking views and fresh air. With a designated parking space, your daily commute becomes effortless. Experience the perfect balance of style and practicality in this exceptional apartment.
Listed by Tokyo Portfolio • Acting as intermediary
Listing updated: 2026-02-27
Around This Property
Shinagawa
12 min walk
Yamanote- Tokaido
Keihin Tohoku Negishi- JobanRapid
Yokosuka- Main
Tennozu Isle
12 min walk
- Rinkai
Payment Calculator

Property Price
Interest rate
The average interest rate for a 35-year fixed loan is 1.368%, while the average variable interest rate is 0.470%.
Loan term
Down payment (20%)¥0
Estimated closing fees (5-8%)
¥14,249,000 – ¥22,798,400
↳ Commission (3.3%) + ¥66,000¥9,470,340
TOTAL DUE AT CLOSE
¥14,249,000 – ¥22,798,400| Down payment (20%) | ¥0 |
| Estimated closing fees (5-8%) ↳ Commission (3.3%) + ¥66,000 | ¥14,249,000 – ¥22,798,400 ¥9,470,340 |
| TOTAL DUE AT CLOSE | ¥14,249,000 – ¥22,798,400 |
|---|
As some of these numbers are calculated using the government-assessed value of the property, the actual total upfront cost cannot be known. Generally speaking, we recommend clients prepare an additional 5–8% on top of the list price.
See here for more details
More Units in This Building

TOKYO SEA SOUTH Branfare
2004
Built
2
Units available
This property is listed by Tokyo Portfolio.
Phone: +81 (0)3-5447-8700
Address: 5-15-12 Minami-azabu, Minato-ku, Tokyo
License number: Governor of Tokyo License (1) No. 107013 / Member of the Ibaraki Prefecture Chapter of the All Japan Real Estate Association / Member of the Tokyo Metropolitan Area Real Estate Fair Trading Council















