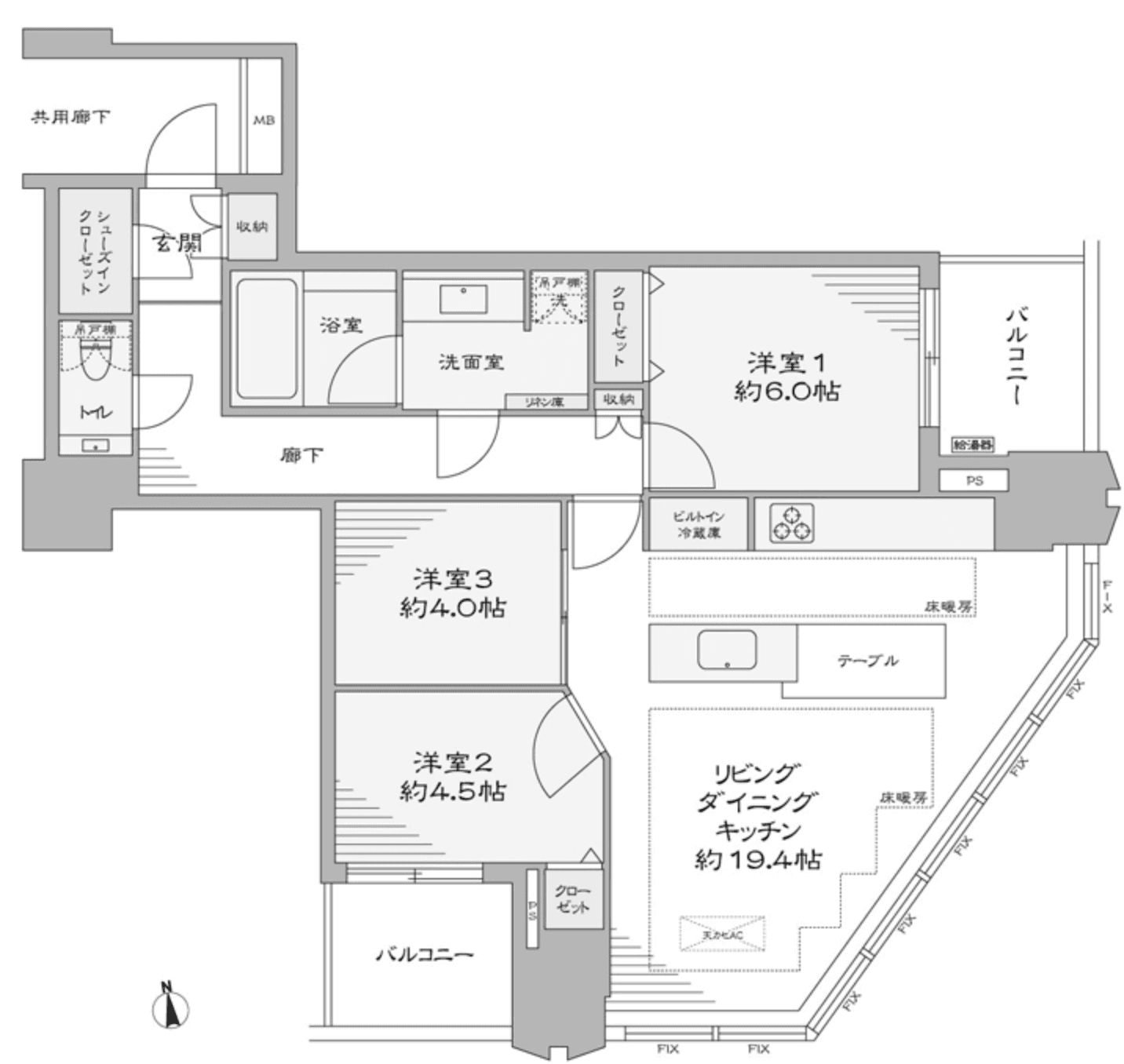
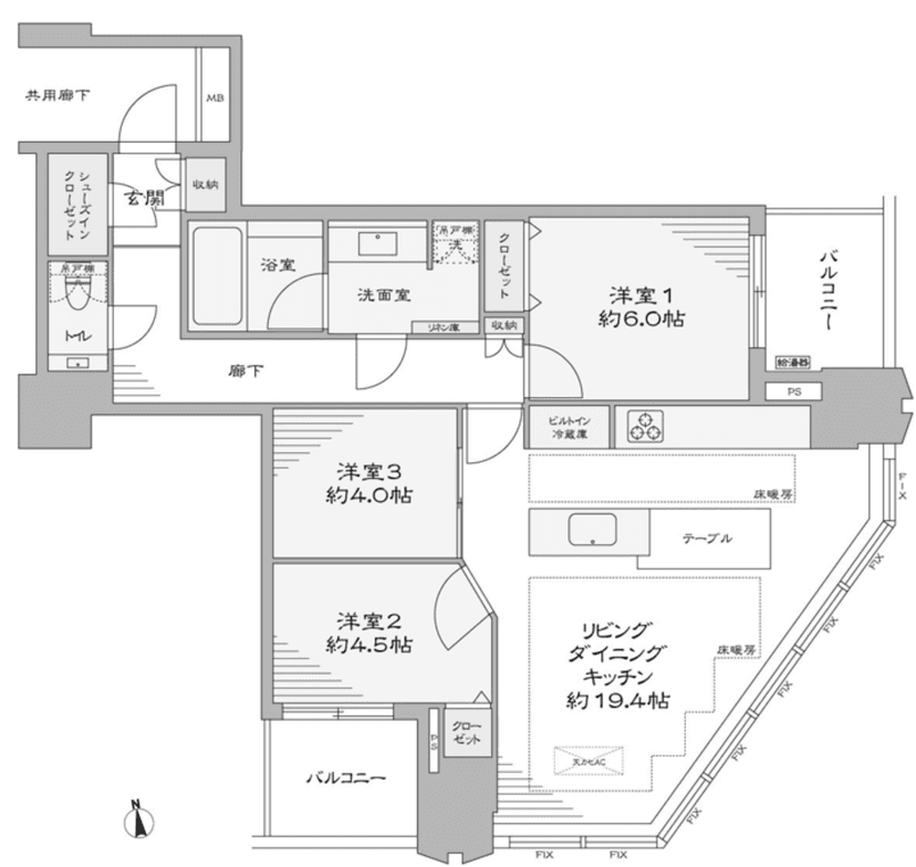
Located on the 20th floor of Tomihisa Cross Comfort Tower, this 3LDK residence offers 81.79 square meters of well-planned living with a walk-in closet that supports an organized, comfortable lifestyle. The elevated floor brings openness and clarity to the interiors, while a balanced layout suits families, remote work, and relaxed entertaining. Every room feels purposeful, designed for long-term urban living. The Tomihisa area near Shinjuku Gyoen is valued for its livability. Green spaces, daily shopping, schools, and medical facilities are close by, making it popular with families and professionals. Strong transport connections allow easy access across Tokyo while preserving a calm residential rhythm.
Listed by Tokyo Portfolio • Acting as intermediary
Listing updated: 2026-02-05
Around This Property
Shinjuku-gyoemmae
7 min walk
- Marunouchi
Shinjuku-sanchome
9 min walk
- Shinjuku
- Marunouchi
- Fukutoshin
Floorplan


Payment Calculator
Property Price
Interest rate
The average interest rate for a 35-year fixed loan is 1.368%, while the average variable interest rate is 0.470%.
Loan term
Down payment (20%)¥0
Estimated closing fees (5-8%)
¥16,095,000 – ¥25,752,000
↳ Commission (3.3%) + ¥66,000¥10,688,700
TOTAL DUE AT CLOSE
¥16,095,000 – ¥25,752,000| Down payment (20%) | ¥0 |
| Estimated closing fees (5-8%) ↳ Commission (3.3%) + ¥66,000 | ¥16,095,000 – ¥25,752,000 ¥10,688,700 |
| TOTAL DUE AT CLOSE | ¥16,095,000 – ¥25,752,000 |
|---|
As some of these numbers are calculated using the government-assessed value of the property, the actual total upfront cost cannot be known. Generally speaking, we recommend clients prepare an additional 5–8% on top of the list price.
See here for more details
More Units in This Building

Tomihisa Cross Comfort Tower
2015
Built
2
Units available
This property is listed by Tokyo Portfolio.
Phone: +81 (0)3-5447-8700
Address: 5-15-12 Minami-azabu, Minato-ku, Tokyo
License number: Governor of Tokyo License (1) No. 107013 / Member of the Ibaraki Prefecture Chapter of the All Japan Real Estate Association / Member of the Tokyo Metropolitan Area Real Estate Fair Trading Council











































