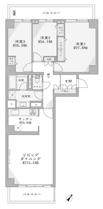
Welcome to Building B 506, a beautifully designed apartment that offers 76.44 sqm of comfort and functionality. Located on the fifth floor, this unit features a spacious layout that seamlessly blends living, dining, and kitchen areas, creating an inviting atmosphere for daily life. Step out onto your private balcony, where you can enjoy fresh air and city views. The pet-friendly policy ensures that your furry companions are welcome, making this space feel like home. A modern kitchen equipped with a dishwasher enhances convenience, allowing for effortless meal preparation and clean-up. With high-speed internet access, staying connected is a breeze. Building B 506 is not just a place to live; it’s a sanctuary that supports your lifestyle. Experience the perfect balance of comfort and functionality in this exceptional apartment.
Listed by Tokyo Portfolio • Acting as intermediary
Listing updated: 2026-02-16
Around This Property
Kachidoki
9 min walk
- Oedo
Tsukishima
4 min walk
- Oedo
- Yurakucho
Payment Calculator

Property Price
Interest rate
The average interest rate for a 35-year fixed loan is 1.368%, while the average variable interest rate is 0.470%.
Loan term
Down payment (20%)¥0
Estimated closing fees (5-8%)
¥6,745,000 – ¥10,792,000
↳ Commission (3.3%) + ¥66,000¥4,517,700
TOTAL DUE AT CLOSE
¥6,745,000 – ¥10,792,000| Down payment (20%) | ¥0 |
| Estimated closing fees (5-8%) ↳ Commission (3.3%) + ¥66,000 | ¥6,745,000 – ¥10,792,000 ¥4,517,700 |
| TOTAL DUE AT CLOSE | ¥6,745,000 – ¥10,792,000 |
|---|
As some of these numbers are calculated using the government-assessed value of the property, the actual total upfront cost cannot be known. Generally speaking, we recommend clients prepare an additional 5–8% on top of the list price.
See here for more details
This property is listed by Tokyo Portfolio.
Phone: +81 (0)3-5447-8700
Address: 5-15-12 Minami-azabu, Minato-ku, Tokyo
License number: Governor of Tokyo License (1) No. 107013 / Member of the Ibaraki Prefecture Chapter of the All Japan Real Estate Association / Member of the Tokyo Metropolitan Area Real Estate Fair Trading Council















