










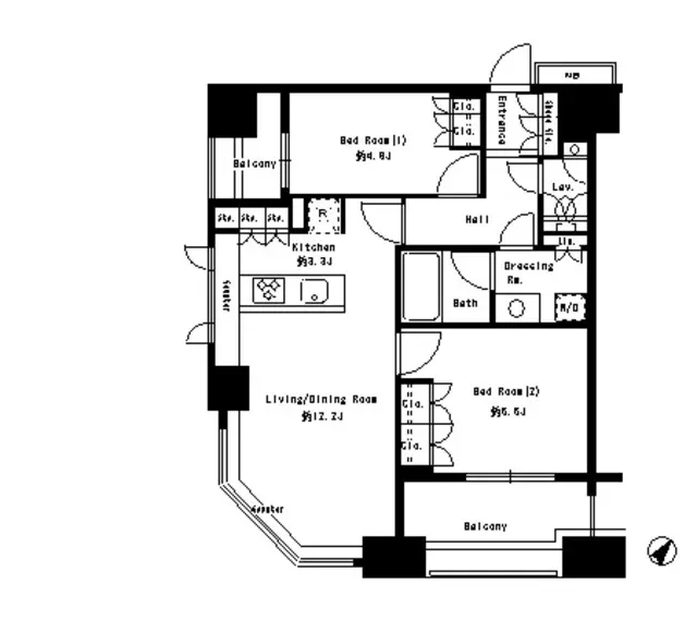
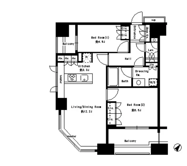
Located on the 13th floor of Park Axis Shirokanedai, this 2LDK residence offers 61.11 square meters of thoughtfully arranged living space with a calm, refined feel. The living and dining area is designed for efficient daily living, while two bedrooms provide flexibility for a couple, small family, or home office setup. The elevated position enhances openness and creates a comfortable sense of separation from the city below. Shirokanedai is admired for its composed residential atmosphere. Surrounded by greenery, museums, and quiet streets, the area is popular with professionals and families seeking balance. International schools, select dining, and excellent transport links support a lifestyle that feels polished, practical, and enduring.
Listed by Tokyo Portfolio • Acting as intermediary
Listing updated: 2025-12-23
Around This Property
Shirokanedai
4 min walk
- Namboku
Meguro
8 min walk
Yamanote
Takanawadai
12 min walk
- Asakusa
Floor Plans & Monthly Fees

¥425,000
Priceper month
Including management fee (-)¥0
•
Insurance (¥0)
2
Beds
1
Baths
61.11
m²

More Units in This Building

Park Axis Shirokanedai
2005
Built
1
Units on sale
This property is listed by Tokyo Portfolio.
Phone: +81 (0)3-5447-8700
Address: 5-15-12 Minami-azabu, Minato-ku, Tokyo
License number: Governor of Tokyo License (1) No. 107013 / Member of the Ibaraki Prefecture Chapter of the All Japan Real Estate Association / Member of the Tokyo Metropolitan Area Real Estate Fair Trading Council



























