








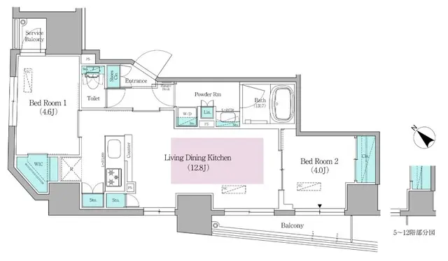
Discover modern city living at Urbanex Nihonbashi Bakurocho II, a brand-new 2LDK residence spanning 51.17㎡. Designed for comfort and efficiency, the unit features bright, open living spaces, a contemporary kitchen, and thoughtfully integrated amenities that make daily life seamless. Ideal for professionals or small families, the layout balances functionality with style, creating a cozy yet sophisticated retreat in the heart of Tokyo. Situated near Bakurocho Station, the neighborhood thrives on connectivity, offering multiple train lines for effortless access across the city. Its blend of traditional markets, modern cafés, and boutique shops appeals to those seeking urban convenience with a touch of local charm, perfect for dynamic city living.
Listed by Tokyo Portfolio • Acting as intermediary
Listing updated: 2025-10-02
Around This Property
Bakurocho
1 min walk
- SobuRapid
Kodemmacho
5 min walk
- Hibiya
Higashi-nihombashi
6 min walk
- Asakusa
Floor Plans & Monthly Fees

¥317,000
Priceper month
Including management fee (-)¥0
•
Insurance (¥0)
2
Beds
1
Baths
51.17
m²

More Units in This Building

Urbanex Nihonbashi Bakurocho II
2025
Built
7
Units on sale
This property is listed by Tokyo Portfolio.
Phone: +81 (0)3-5447-8700
Address: 5-15-12 Minami-azabu, Minato-ku, Tokyo
License number: Governor of Tokyo License (1) No. 107013 / Member of the Ibaraki Prefecture Chapter of the All Japan Real Estate Association / Member of the Tokyo Metropolitan Area Real Estate Fair Trading Council


































