








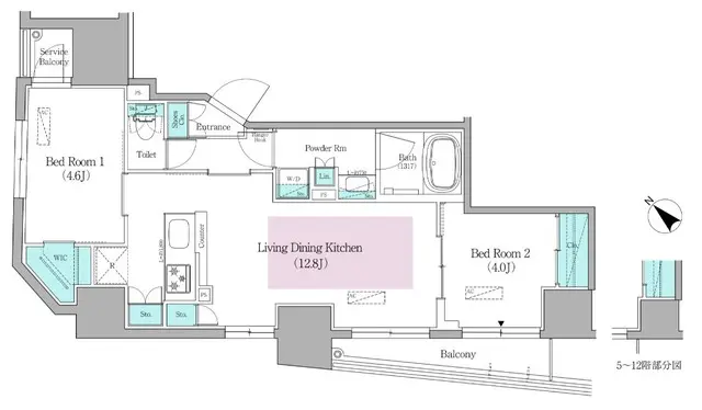
Discover contemporary urban living at Urbanex Nihonbashi Bakurocho II, a sleek 2LDK residence spanning 51.17㎡, designed for both comfort and functionality. Sunlight fills the open living space, while a modern kitchen and premium bathroom amenities create a seamless everyday experience. Thoughtful layouts and high-quality finishes elevate this new construction into a stylish city sanctuary. Situated just steps from Bakurocho Station, residents enjoy unmatched connectivity with multiple train lines at their doorstep. The neighborhood blends historic charm with modern convenience, offering boutique shops, artisan cafés, and vibrant local markets. Perfect for professionals or small families seeking a dynamic, well-connected Tokyo lifestyle.
Listed by Tokyo Portfolio • Acting as intermediary
Listing updated: 2025-10-08
Around This Property
Bakurocho
1 min walk
- SobuRapid
Kodemmacho
5 min walk
- Hibiya
Higashi-nihombashi
6 min walk
- Asakusa
Floor Plans & Monthly Fees

¥300,000
Priceper month
Including management fee (-)¥0
•
Insurance (¥0)
2
Beds
1
Baths
51.17
m²

More Units in This Building

Urbanex Nihonbashi Bakurocho II
2025
Built
7
Units on sale
This property is listed by Tokyo Portfolio.
Phone: +81 (0)3-5447-8700
Address: 5-15-12 Minami-azabu, Minato-ku, Tokyo
License number: Governor of Tokyo License (1) No. 107013 / Member of the Ibaraki Prefecture Chapter of the All Japan Real Estate Association / Member of the Tokyo Metropolitan Area Real Estate Fair Trading Council


































