









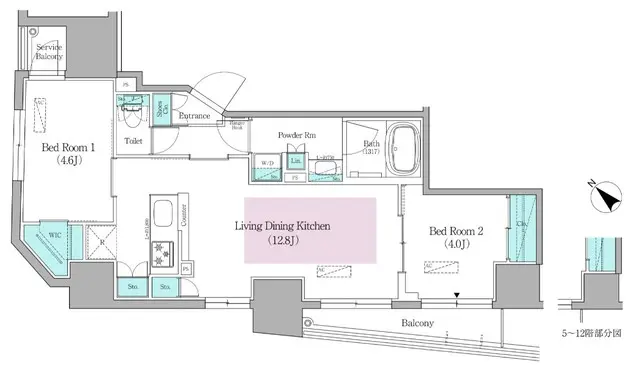
Discover modern city living at Urbanex Nihonbashi Bakurocho II, a brand-new 2LDK residence spanning 51.17㎡. The thoughtfully designed interiors blend sleek finishes with functional comfort, offering a bright, open living space perfect for both relaxation and entertaining. Premium amenities ensure convenience, while large windows frame dynamic city views, inviting natural light throughout the day. Nestled near Bakurocho Station, this vibrant neighborhood connects effortlessly to multiple train lines, making commuting a breeze. Known for its mix of historic charm and contemporary energy, the area boasts boutique shops, cozy cafés, and artisan markets. Ideal for young professionals or small families seeking a well-connected, stylish urban lifestyle.
Listed by Tokyo Portfolio • Acting as intermediary
Listing updated: 2025-10-02
Around This Property
Bakurocho
1 min walk
- SobuRapid
Kodemmacho
5 min walk
- Hibiya
Higashi-nihombashi
6 min walk
- Asakusa
Floor Plans & Monthly Fees

¥304,000
Priceper month
Including management fee (-)¥0
•
Insurance (¥0)
2
Beds
1
Baths
51.17
m²

More Units in This Building

Urbanex Nihonbashi Bakurocho II
2025
Built
7
Units on sale
This property is listed by Tokyo Portfolio.
Phone: +81 (0)3-5447-8700
Address: 5-15-12 Minami-azabu, Minato-ku, Tokyo
License number: Governor of Tokyo License (1) No. 107013 / Member of the Ibaraki Prefecture Chapter of the All Japan Real Estate Association / Member of the Tokyo Metropolitan Area Real Estate Fair Trading Council


































