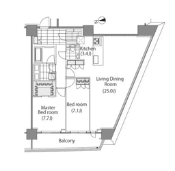
Welcome to unit 1513 in the prestigious Comforia Shinjuku Eastside Tower, where modern living meets comfort. This spacious 2LDK condo spans 73.72 square meters, thoughtfully designed to enhance your daily life. Step inside to discover an inviting layout that seamlessly blends functionality with style. Enjoy the convenience of a bathroom dryer and floor heating, ensuring warmth and comfort throughout the seasons. The unit also features a state-of-the-art disposer, making meal prep a breeze. Located on the 15th floor, the apartment offers a serene escape from the bustling city below. With easy access to Higashi-Shinjuku and Shinjuku-sanchome stations, commuting is effortless. Experience the perfect balance of urban convenience and cozy living in this exceptional space.
Listed by Tokyo Portfolio • Acting as intermediary
Listing updated: 2026-04-13
Around This Property
Higashi-shinjuku
2 min walk
- Fukutoshin
Shinjuku-sanchome
4 min walk
- Marunouchi
Seibu-Shinjuku
11 min walk
- Shinjuku
Floor Plans & Monthly Fees

¥619,000
Priceper month
Including management fee (¥0)¥0
•
Insurance (¥0)
2
Beds
1
Baths
98.48
m²
*This is just a guide and may not accurately reflect what the total upfront fees will be. Some management companies will have other unique fees not accounted for here. We will always explain the full breakdown of upfront costs.
**If you have pets and this is a pet friendly property, expect to pay at least one additional month in security deposit.

More Units in This Building

Comforia Shinjuku East Side Tower
2012
Built
7
Units available
This property is listed by Tokyo Portfolio.
Phone: +81 (0)3-5447-8700
Address: 5-15-12 Minami-azabu, Minato-ku, Tokyo
License number: Governor of Tokyo License (1) No. 107013 / Member of the Ibaraki Prefecture Chapter of the All Japan Real Estate Association / Member of the Tokyo Metropolitan Area Real Estate Fair Trading Council


















