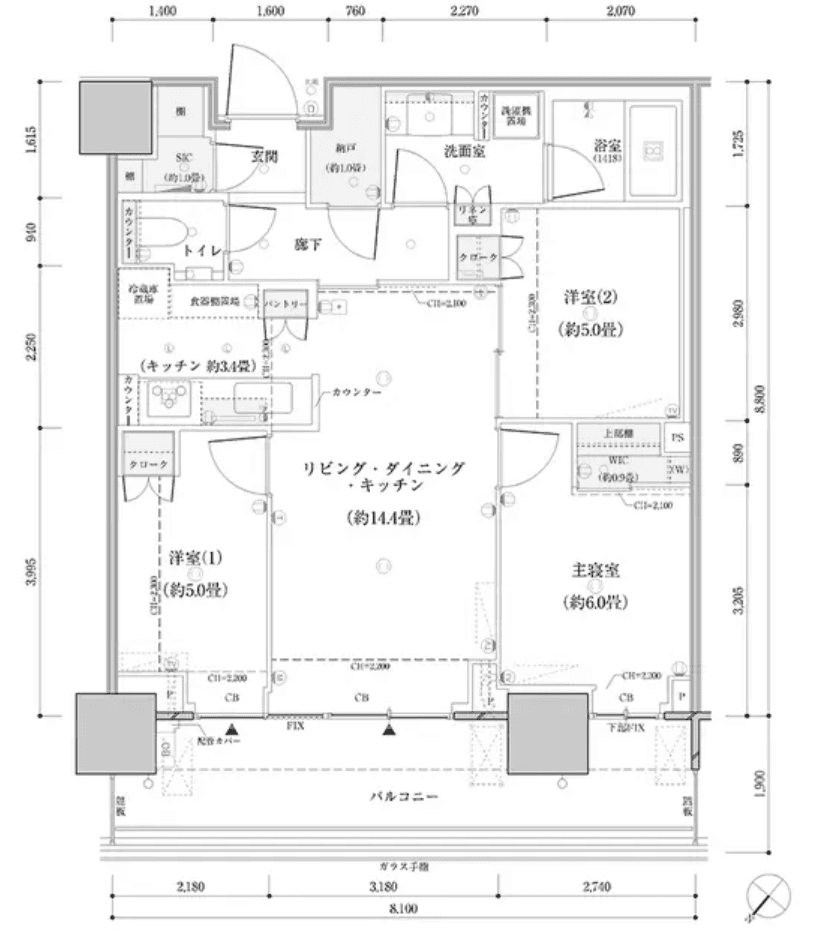
Welcome to unit 2212 in the prestigious Park Tower Kachidoki Mid Tower, where modern living meets comfort. This spacious 3LDK condo spans 70.32 square meters and is situated on the 22nd floor, offering stunning views and an abundance of natural light. The thoughtfully designed layout features a system kitchen equipped with a dishwasher and reheating function, perfect for culinary enthusiasts. Enjoy the convenience of a separate washbasin and a bathroom with a dryer, enhancing your daily routine. The walk-in closet provides ample storage, while the air conditioning and floor heating ensure year-round comfort. Step outside onto your private balcony to unwind, or take advantage of the building's amenities, including concierge services and bicycle parking. With Kachidoki Station just a short walk away, commuting is a breeze, connecting you effortlessly to the vibrant city. Experience a lifestyle of convenience and elegance in this exceptional apartment.
Listed by Tokyo Portfolio • Acting as intermediary
Listing updated: 2026-02-12
Around This Property
Kachidoki
1 min walk
- Oedo
Tsukishima
17 min walk
- Yurakucho
Floor Plans & Monthly Fees

¥467,000
Priceper month
Including management fee (¥0)¥0
•
Insurance (¥0)
2
Beds
1
Baths
70.32
m²
*This is just a guide and may not accurately reflect what the total upfront fees will be. Some management companies will have other unique fees not accounted for here. We will always explain the full breakdown of upfront costs.
**If you have pets and this is a pet friendly property, expect to pay at least one additional month in security deposit.

More Units in This Building

Park Tower Kachidoki Mid
2023
Built
1
Units on sale
This property is listed by Tokyo Portfolio.
Phone: +81 (0)3-5447-8700
Address: 5-15-12 Minami-azabu, Minato-ku, Tokyo
License number: Governor of Tokyo License (1) No. 107013 / Member of the Ibaraki Prefecture Chapter of the All Japan Real Estate Association / Member of the Tokyo Metropolitan Area Real Estate Fair Trading Council












