











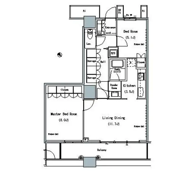
Elevated on the 41st floor, this 3LDK residence at Park Tower Kachidoki Mid spans 69.35 m², combining modern elegance with breathtaking city views. Expansive windows fill the open-plan living and dining area with natural light, while three versatile bedrooms offer flexibility for families, professionals, or those seeking a dedicated home office. A sleek kitchen and refined finishes complete the space with understated luxury. In vibrant Kachidoki, riverside promenades, gourmet dining, and family-friendly parks define daily life, with Ginza and Marunouchi just minutes away. This home offers not only prestige but also an ideal balance of comfort, community, and metropolitan convenience.
Listed by Tokyo Portfolio • Acting as intermediary
Listing updated: 2025-09-27
Around This Property
Kachidoki
1 min walk
- Oedo
Tsukishima
17 min walk
- Yurakucho
Floor Plans & Monthly Fees

¥410,000
Priceper month
Including management fee (-)¥0
•
Insurance (¥0)
3
Beds
1
Baths
69.35
m²

This property is listed by Tokyo Portfolio.
Phone: +81 (0)3-5447-8700
Address: 5-15-12 Minami-azabu, Minato-ku, Tokyo
License number: Governor of Tokyo License (1) No. 107013 / Member of the Ibaraki Prefecture Chapter of the All Japan Real Estate Association / Member of the Tokyo Metropolitan Area Real Estate Fair Trading Council

























