










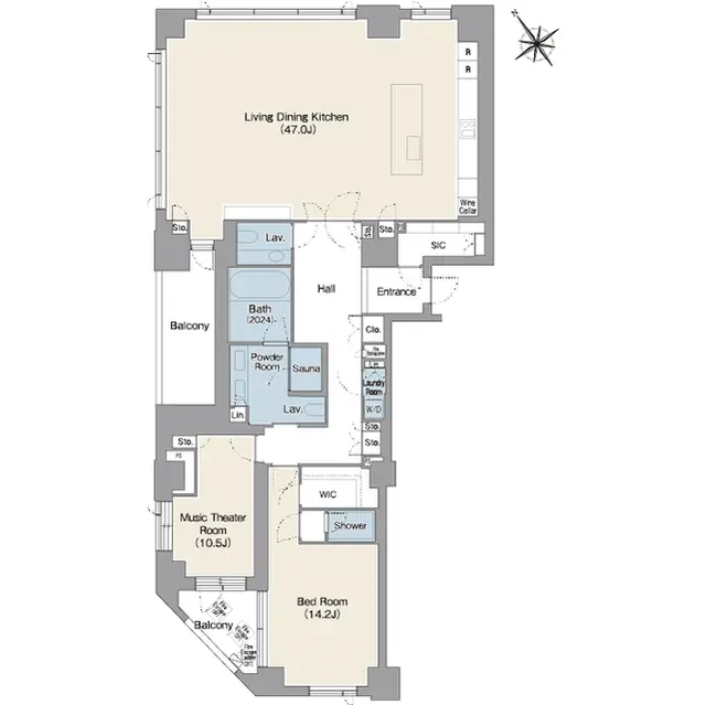
Situated on the 3rd floor of Brestage Residence Shirokanedai, this 2LDK unit spans 187.59 m², offering exceptional space and refined comfort. Two spacious bedrooms and a well-appointed bathroom complement a large living and dining area, where natural light highlights elegant finishes and thoughtful design. The open layout is perfect for relaxed family living or stylish entertaining. Shirokanedai is a highly coveted neighborhood, celebrated for its quiet, tree-lined streets, upscale boutiques, and gourmet cafés. Ideal for families and professionals, it provides easy access to parks, international schools, and cultural spots, blending tranquility with city convenience. Experience a lifestyle where sophistication meets comfort, and every detail—from the expansive interiors to the serene surroundings—reflects the best of contemporary Tokyo living.
Listed by Tokyo Portfolio • Acting as intermediary
Listing updated: 2025-09-30
Around This Property
Shirokanedai
10 min walk
- Namboku
Meguro
18 min walk
Yamanote
Hiro-o
19 min walk
- Hibiya
Floor Plans & Monthly Fees

¥3,000,000
Priceper month
Including management fee (-)¥0
•
Insurance (¥0)
2
Beds
1
Baths
187.59
m²

More Units in This Building

Prestige Residence Shirokanedai
2025
Built
2
Units on sale
This property is listed by Tokyo Portfolio.
Phone: +81 (0)3-5447-8700
Address: 5-15-12 Minami-azabu, Minato-ku, Tokyo
License number: Governor of Tokyo License (1) No. 107013 / Member of the Ibaraki Prefecture Chapter of the All Japan Real Estate Association / Member of the Tokyo Metropolitan Area Real Estate Fair Trading Council



























