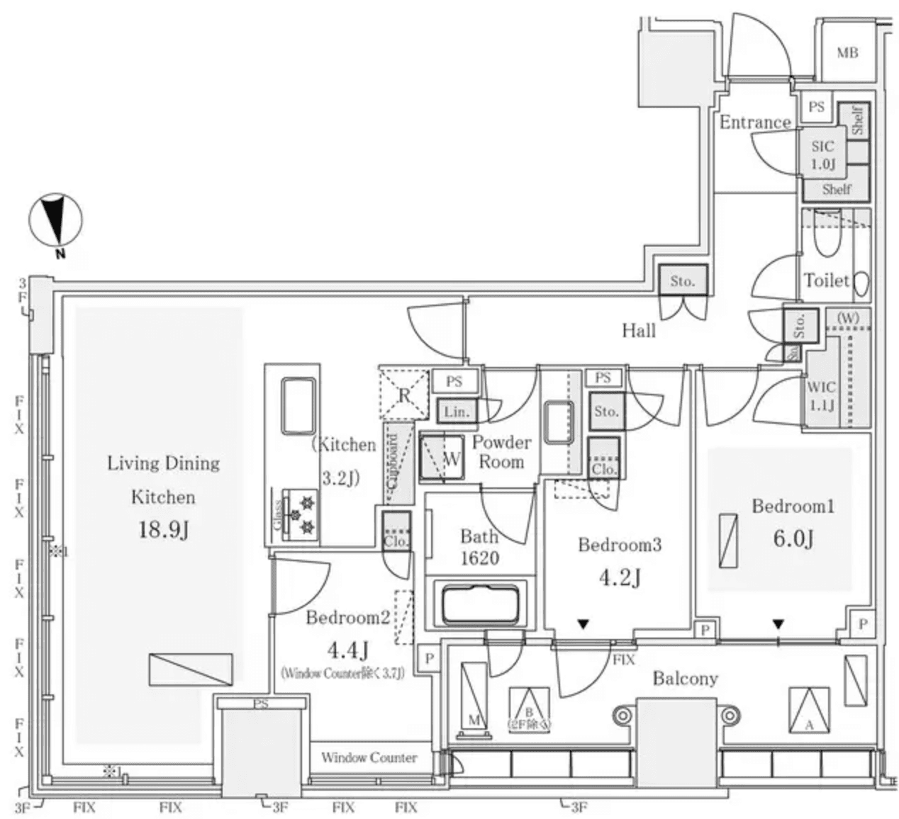
Welcome to unit 310 at Park Court The Sanbancho House, a beautifully designed 2LDK condo that offers 63.11 square meters of modern living. This third-floor residence features a thoughtful layout that seamlessly blends comfort and functionality, making it ideal for daily life. The spacious living area is enhanced by floor heating and air conditioning, ensuring year-round comfort. A well-appointed system kitchen, complete with a dishwasher and reheating function, invites culinary creativity. The walk-in closet and separate washbasin add convenience, while the bathroom dryer and indoor washing machine space offer practical solutions for busy lifestyles. Step onto your private balcony to enjoy fresh air, and benefit from amenities like a concierge and auto-lock for added security. With Hanzomon and Ichigaya stations just an 8-minute walk away, commuting is a breeze, making this unit a perfect sanctuary in the heart of the city.
Listed by Tokyo Portfolio • Acting as intermediary
Listing updated: 2026-03-12
Around This Property
Hanzomon
8 min walk
- Hanzomon
Ichigaya
8 min walk
- ChuoSobuLocal
Kudanshita
13 min walk
- Tozai
Floorplan


Monthly Fees
¥614,000
Priceper month
Including management fee (¥0)¥0
•
Insurance (¥0)
3
Beds
1
Baths
81.21
m²
*This is just a guide and may not accurately reflect what the total upfront fees will be. Some management companies will have other unique fees not accounted for here. We will always explain the full breakdown of upfront costs.
**If you have pets and this is a pet friendly property, expect to pay at least one additional month in security deposit.
More Units in This Building

Park Court The Sanbancho House
2025
Built
6
Units available
This property is listed by Tokyo Portfolio.
Phone: +81 (0)3-5447-8700
Address: 5-15-12 Minami-azabu, Minato-ku, Tokyo
License number: Governor of Tokyo License (1) No. 107013 / Member of the Ibaraki Prefecture Chapter of the All Japan Real Estate Association / Member of the Tokyo Metropolitan Area Real Estate Fair Trading Council
















