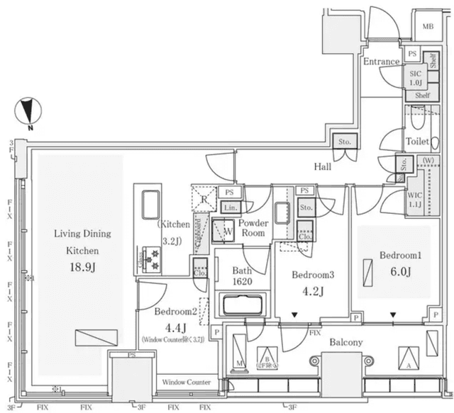
Welcome to unit 906 at Park Court The Sanbancho House, a beautifully designed 3LDK condo that spans 71.11 square meters on the ninth floor. This inviting space features a thoughtful layout that seamlessly blends comfort and functionality, making daily life a pleasure. The modern system kitchen, complete with a dishwasher and reheating function, is perfect for culinary enthusiasts. Enjoy the convenience of a separate washbasin and a bathroom equipped with a dryer, enhancing your daily routine. The spacious walk-in closet offers ample storage, while the air-conditioning and floor heating ensure year-round comfort. Step out onto your private balcony to savor the views, and take advantage of the building's amenities, including a concierge service and auto-lock security for peace of mind. With easy access to Hanzomon and Ichigaya stations just an 8-minute walk away, commuting is a breeze. Experience the perfect blend of urban living and serene comfort in this exceptional apartment.
Listed by Tokyo Portfolio • Acting as intermediary
Listing updated: 2026-03-13
Around This Property
Hanzomon
8 min walk
- Hanzomon
Ichigaya
8 min walk
- ChuoSobuLocal
Kudanshita
13 min walk
- Tozai
Floorplan


Monthly Fees
¥432,000
Priceper month
Including management fee (¥0)¥0
•
Insurance (¥0)
2
Beds
1
Baths
56.7
m²
*This is just a guide and may not accurately reflect what the total upfront fees will be. Some management companies will have other unique fees not accounted for here. We will always explain the full breakdown of upfront costs.
**If you have pets and this is a pet friendly property, expect to pay at least one additional month in security deposit.
More Units in This Building

Park Court The Sanbancho House
2025
Built
6
Units available
This property is listed by Tokyo Portfolio.
Phone: +81 (0)3-5447-8700
Address: 5-15-12 Minami-azabu, Minato-ku, Tokyo
License number: Governor of Tokyo License (1) No. 107013 / Member of the Ibaraki Prefecture Chapter of the All Japan Real Estate Association / Member of the Tokyo Metropolitan Area Real Estate Fair Trading Council
















