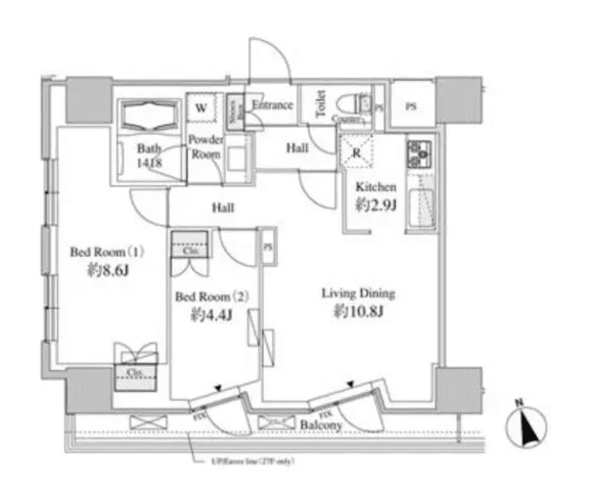
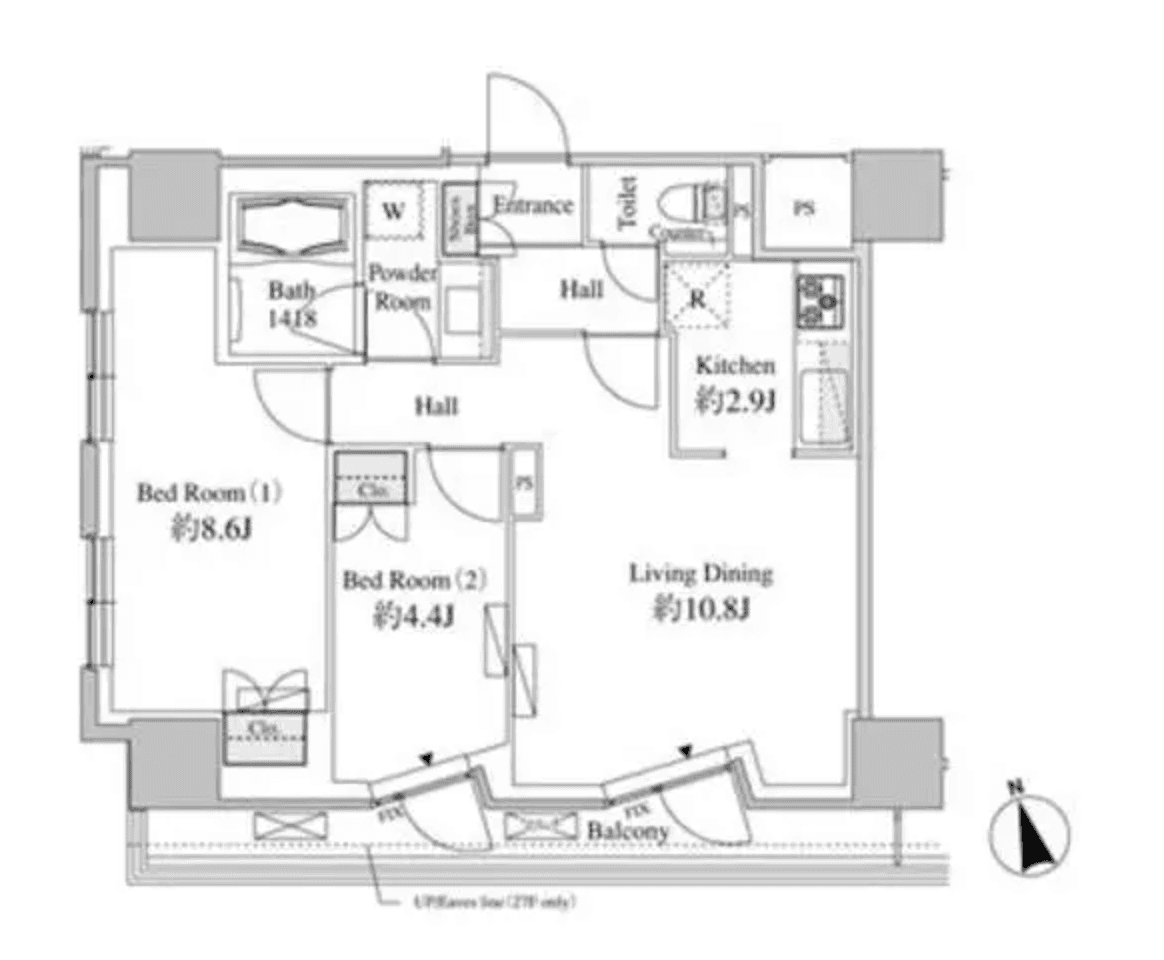
Welcome to unit 2703 at Belface Shibaura Tower, a beautifully designed 2LDK condo that spans 59.82 square meters on the 27th floor. This modern space is thoughtfully laid out to enhance comfort and functionality, featuring a system kitchen with a reheating function, perfect for culinary enthusiasts. The unit includes a separate bathroom and toilet, along with a dedicated indoor washing machine space, ensuring convenience in daily routines. Enjoy the luxury of air-conditioning and a private balcony, ideal for unwinding after a long day. With amenities like a concierge service and bicycle parking, this residence supports a vibrant lifestyle. Located just a 13-minute walk from both Tamachi and Sengakuji stations, commuting is effortless, making this apartment a perfect sanctuary in the heart of the city.
Listed by Tokyo Portfolio • Acting as intermediary
Listing updated: 2026-04-04
Around This Property
Tamachi
13 min walk
Yamanote
Sengakuji
13 min walk
- Asakusa
Floor Plans & Monthly Fees

¥328,000
Priceper month
Including management fee (¥12,000)¥12,000
•
Insurance (¥0)
2
Beds
1
Baths
59.82
m²
*This is just a guide and may not accurately reflect what the total upfront fees will be. Some management companies will have other unique fees not accounted for here. We will always explain the full breakdown of upfront costs.
**If you have pets and this is a pet friendly property, expect to pay at least one additional month in security deposit.

More Units in This Building

Belface Shibaura Tower
2010
Built
4
Units available
This property is listed by Tokyo Portfolio.
Phone: +81 (0)3-5447-8700
Address: 5-15-12 Minami-azabu, Minato-ku, Tokyo
License number: Governor of Tokyo License (1) No. 107013 / Member of the Ibaraki Prefecture Chapter of the All Japan Real Estate Association / Member of the Tokyo Metropolitan Area Real Estate Fair Trading Council














