










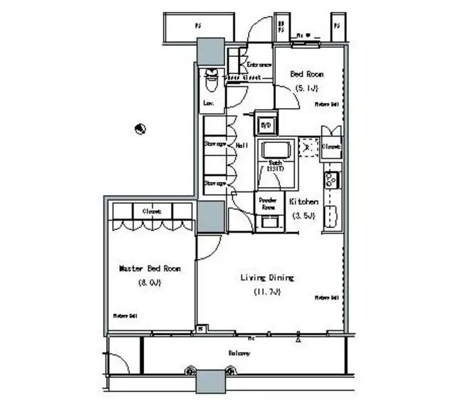
Rising above the vibrant waterfront of Kachidoki, this 2LDK residence in The Tokyo Towers Mid Tower spans 70.38㎡, offering a sleek, modern living space filled with natural light. The open-plan living and dining area creates an inviting atmosphere, while high-quality fixtures and finishes enhance daily comfort. Residents enjoy access to extensive shared amenities, perfect for relaxation, fitness, or socializing with neighbors. Situated just steps from Kachidoki Station, this dynamic neighborhood blends riverside serenity with cosmopolitan convenience. Cafés, gourmet markets, and scenic promenades line the area, making it ideal for professionals, couples, and small families seeking a balanced urban lifestyle with easy access to central Tokyo.
Listed by Tokyo Portfolio • Acting as intermediary
Listing updated: 2025-12-12
Around This Property
Kachidoki
5 min walk
- Oedo
Tsukijishijo
17 min walk
- Oedo
Floor Plans & Monthly Fees

¥319,000
Priceper month
Including management fee (-)¥0
•
Insurance (¥0)
2
Beds
1
Baths
70.38
m²

More Units in This Building

The Tokyo Towers Mid Tower
2008
Built
6
Units on sale
This property is listed by Tokyo Portfolio.
Phone: +81 (0)3-5447-8700
Address: 5-15-12 Minami-azabu, Minato-ku, Tokyo
License number: Governor of Tokyo License (1) No. 107013 / Member of the Ibaraki Prefecture Chapter of the All Japan Real Estate Association / Member of the Tokyo Metropolitan Area Real Estate Fair Trading Council

































