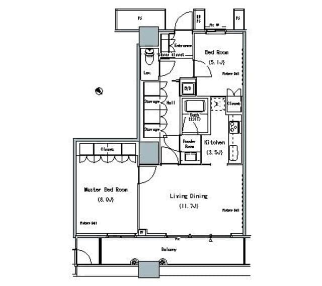
Welcome to unit 2627 in The Tokyo Towers Mid Tower, a stunning 2LDK condo that perfectly blends comfort and functionality. Spanning 70.38 square meters, this thoughtfully designed space features an open layout that invites natural light, creating a warm and welcoming atmosphere. The modern system kitchen, equipped with a reheating function, makes meal preparation a delight. Enjoy the convenience of a separate bathroom and toilet, along with a bathroom dryer for added comfort. Step out onto your private balcony to savor the views or unwind after a long day. Located on the 26th floor, this unit offers easy access to essential amenities, including air conditioning, a delivery box, and a concierge service. With Kachidoki Station just a 5-minute walk away, commuting is a breeze, allowing you to fully embrace the vibrant lifestyle that awaits you. Experience the perfect blend of urban living and serene comfort in this exceptional apartment.
Listed by Tokyo Portfolio • Acting as intermediary
Listing updated: 2026-02-15
Around This Property
Kachidoki
5 min walk
- Oedo
Tsukijishijo
17 min walk
- Oedo
Floor Plans & Monthly Fees

¥317,000
Priceper month
Including management fee (¥20,000)¥20,000
•
Insurance (¥0)
2
Beds
1
Baths
70.38
m²
*This is just a guide and may not accurately reflect what the total upfront fees will be. Some management companies will have other unique fees not accounted for here. We will always explain the full breakdown of upfront costs.
**If you have pets and this is a pet friendly property, expect to pay at least one additional month in security deposit.

More Units in This Building

The Tokyo Towers Mid Tower
2008
Built
17
Units available

Unit
28291 Bed • 2 Bath
¥319,000Price

Unit
27201 Bed • 2 Bath
¥334,000Price

Unit
3111 Bed • 3 Bath
¥480,000Price

Unit
28121 Bed • 2 Bath
¥420,000Price

Unit
4071 Bed • 2 Bath
¥422,000Price

Unit
11081 Bed • 2 Bath
¥441,000Price

Unit
4121 Bed • 2 Bath
¥330,000Price

Unit
35111 Bed • 3 Bath
¥219,900,000Price

Unit
35F1 Bed • 2 Bath
¥178,000,000Price

Unit
23011 Bed • 2 Bath
¥438,000Price

Unit
13021 Bed • 2 Bath
¥326,000Price

Unit
25101 Bed • 3 Bath
¥427,000Price

Unit
26011 Bed • 2 Bath
¥448,000Price

Unit
23111 Bed • 3 Bath
¥420,000Price

Unit
19261 Bed • 2 Bath
¥433,000Price

Unit
2021 Bed • 1 Bath
¥169,800,000Price

Unit
35F1 Bed • 4 Bath
¥400,000,000Price
This property is listed by Tokyo Portfolio.
Phone: +81 (0)3-5447-8700
Address: 5-15-12 Minami-azabu, Minato-ku, Tokyo
License number: Governor of Tokyo License (1) No. 107013 / Member of the Ibaraki Prefecture Chapter of the All Japan Real Estate Association / Member of the Tokyo Metropolitan Area Real Estate Fair Trading Council










