









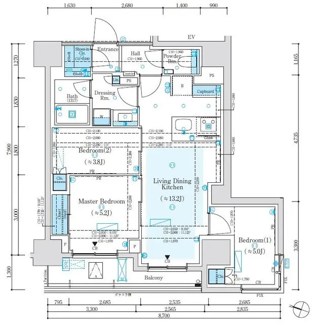
Sunlight fills this 10th-floor three-bedroom home in Park Luxe Kanda, illuminating a layout designed for comfort and easy flow. The generous living-dining area invites relaxed meals and quiet evenings, while each bedroom offers a calm space for rest or focused work. Quality materials and thoughtful proportions enhance the sense of everyday ease. The surrounding Kanda area brings together history, convenience, and a lively dining culture. Bookstores, specialty shops, and small cafes line walkable streets that suit professionals, students, and young families. Quick access to major transit hubs supports a connected lifestyle, creating an appealing base in the heart of Tokyo.
Listed by Tokyo Portfolio • Acting as intermediary
Listing updated: 2025-12-12
Around This Property
Kanda
3 min walk
Yamanote
Awajicho
5 min walk
- Marunouchi
Ogawamachi
5 min walk
- Shinjuku
Floor Plans & Monthly Fees

¥382,000
Priceper month
Including management fee (-)¥0
•
Insurance (¥0)
3
Beds
1
Baths
61.89
m²

This property is listed by Tokyo Portfolio.
Phone: +81 (0)3-5447-8700
Address: 5-15-12 Minami-azabu, Minato-ku, Tokyo
License number: Governor of Tokyo License (1) No. 107013 / Member of the Ibaraki Prefecture Chapter of the All Japan Real Estate Association / Member of the Tokyo Metropolitan Area Real Estate Fair Trading Council























