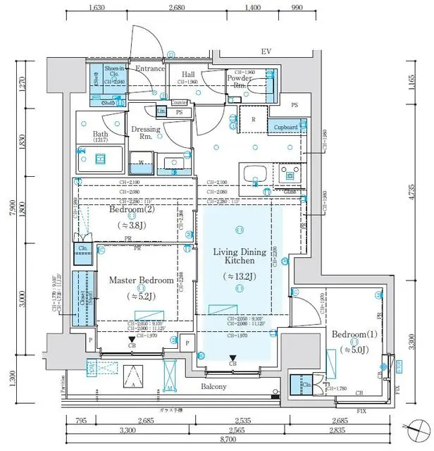
Welcome to unit 902 at Park Luxe Kanda, a beautifully designed 2LDK condo that spans 59.85 square meters on the ninth floor. This inviting space features a thoughtful layout that seamlessly blends comfort and functionality, making it perfect for modern living. The heart of the home is the system kitchen, equipped with a dishwasher and reheating function, ideal for culinary enthusiasts. Enjoy the convenience of a separate washbasin and a bathroom with a dryer, enhancing your daily routine. The indoor washing machine space adds to the practicality of this unit. Step out onto your private balcony to savor the fresh air, or unwind in the cozy living area, complete with floor heating and air-conditioning for year-round comfort. The building offers amenities such as a concierge service and auto-lock security, ensuring a safe and convenient lifestyle. Located just a short walk from Kanda Station, Awajicho Station, and Ogawamachi Station, commuting is a breeze. Experience the perfect blend ...
Listed by Tokyo Portfolio • Acting as intermediary
Listing updated: 2026-03-12
Around This Property
Kanda
3 min walk
Yamanote
Awajicho
5 min walk
- Marunouchi
Ogawamachi
5 min walk
- Shinjuku
Floorplan


Monthly Fees
¥400,000
Priceper month
Including management fee (¥20,000)¥20,000
•
Insurance (¥0)
2
Beds
1
Baths
59.85
m²
*This is just a guide and may not accurately reflect what the total upfront fees will be. Some management companies will have other unique fees not accounted for here. We will always explain the full breakdown of upfront costs.
**If you have pets and this is a pet friendly property, expect to pay at least one additional month in security deposit.
More Units in This Building

Park Luxe Kanda
2021
Built
1
Units available
This property is listed by Tokyo Portfolio.
Phone: +81 (0)3-5447-8700
Address: 5-15-12 Minami-azabu, Minato-ku, Tokyo
License number: Governor of Tokyo License (1) No. 107013 / Member of the Ibaraki Prefecture Chapter of the All Japan Real Estate Association / Member of the Tokyo Metropolitan Area Real Estate Fair Trading Council










