





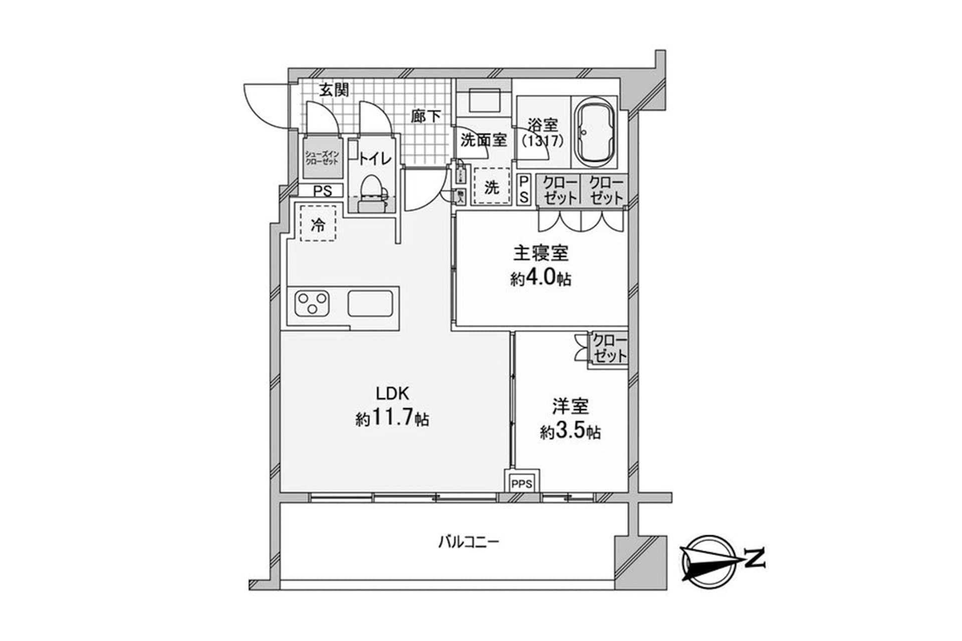
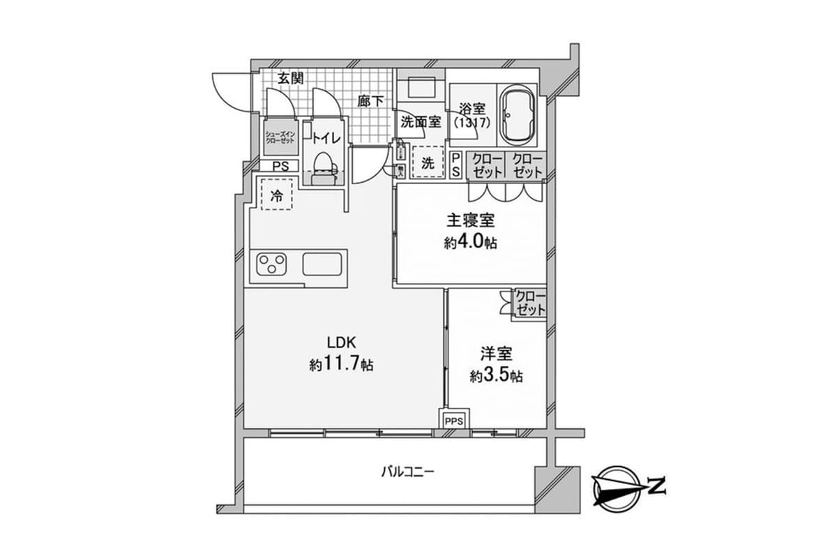
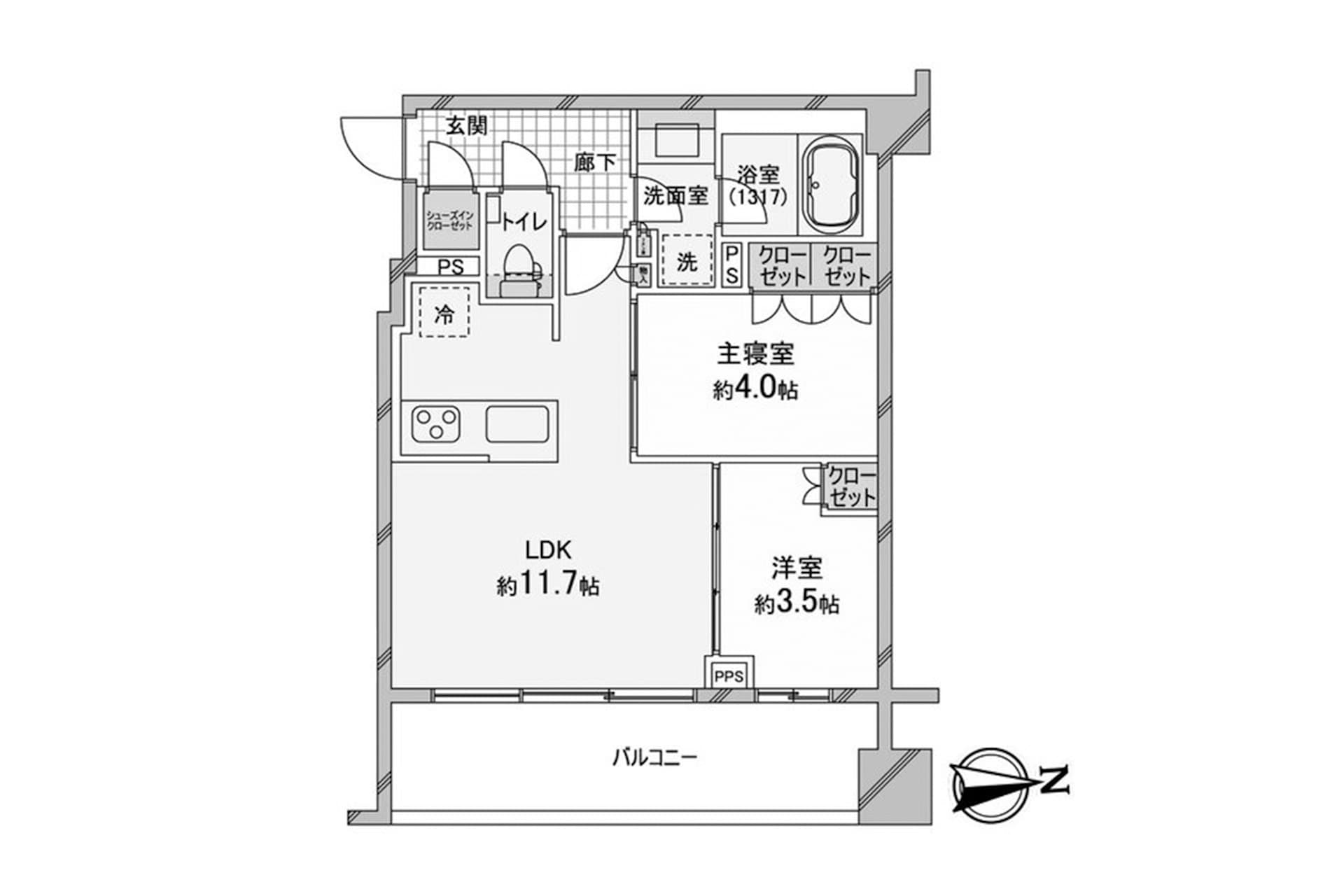
Nestled in the serene streets of Jiyugaoka, Diana Court Jiyugaoka Terrace presents a modern 2LDK layout spanning 45.02㎡, where comfort meets style. Sunlight floods the open living area through expansive windows, highlighting the sleek open kitchen and thoughtfully designed interiors. A hotel-like corridor and wide-span layout enhance a sense of space, while small-pet-friendly policies allow companionship in this urban retreat. Located just a 10-minute walk from Jiyugaoka Station via a flat approach, the neighborhood is famed for its boutique shops, artisanal cafés, and leafy avenues. Ideal for young professionals or small families, it combines tranquil residential charm with effortless access to Tokyo’s vibrant city life.
Listed by Tokyo Portfolio • Acting as intermediary
Listing updated: 2025-10-23
Around This Property
Jiyugaoka
10 min walk
- Oimachi
- Toyoko
Gregg International School
Ages 2-12 years | Walk 9 mins by foot
Floor Plans & Monthly Fees

¥250,000
Priceper month
Including management fee (-)¥0
•
Insurance (¥0)
2
Beds
1
Baths
45.02
m²

This property is listed by Tokyo Portfolio.
Phone: +81 (0)3-5447-8700
Address: 5-15-12 Minami-azabu, Minato-ku, Tokyo
License number: Governor of Tokyo License (1) No. 107013 / Member of the Ibaraki Prefecture Chapter of the All Japan Real Estate Association / Member of the Tokyo Metropolitan Area Real Estate Fair Trading Council























