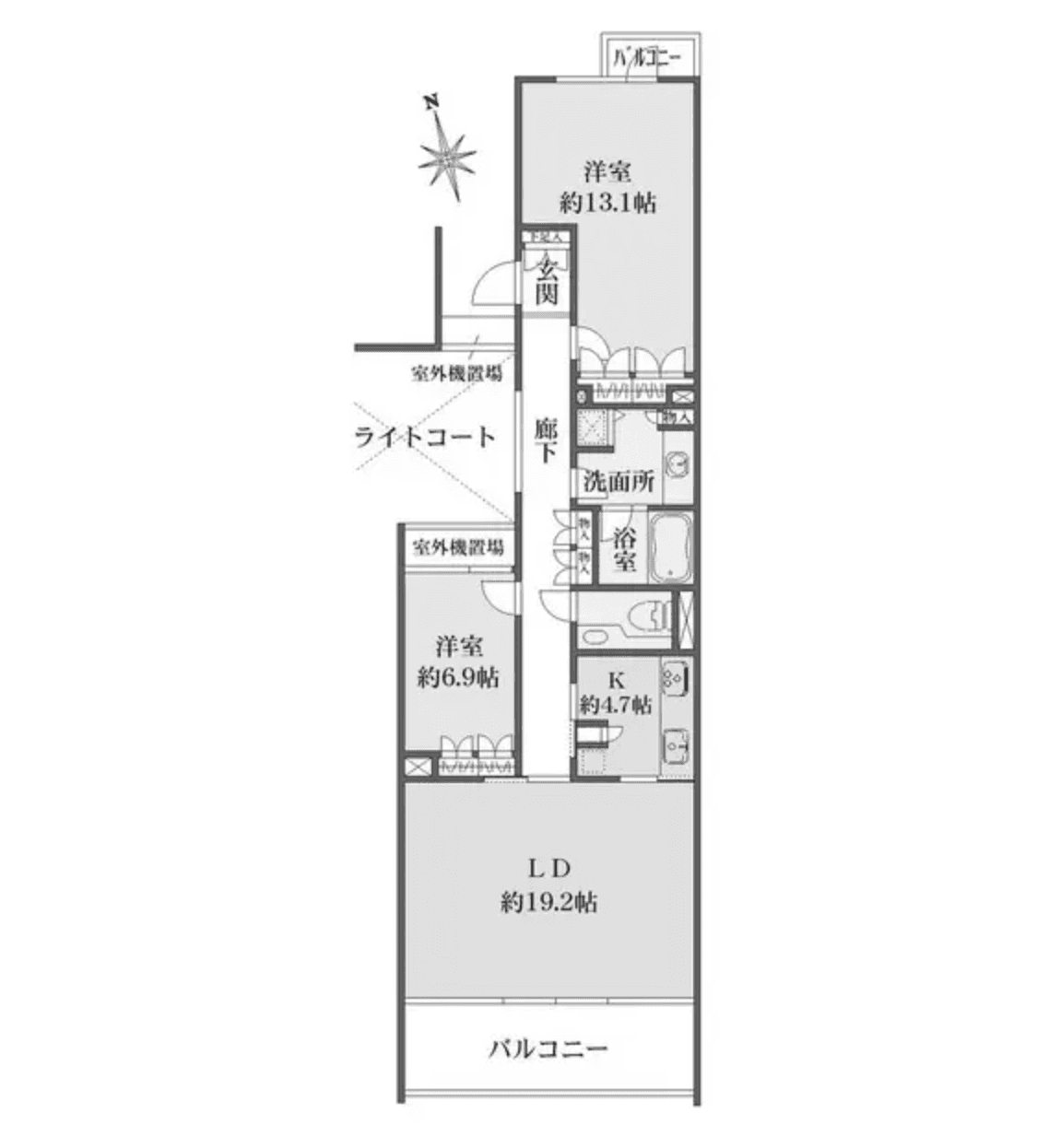
Welcome to unit 207 in The Parkhouse Todoroki E Building, a spacious 2LDK condo that spans 104.69 square meters. This thoughtfully designed apartment offers a harmonious blend of comfort and functionality, perfect for modern living. Step inside to discover a well-appointed layout featuring a separate washbasin and a bidet-toilet for added convenience. The kitchen boasts a two-burner stove and a dishwasher, making meal prep a breeze. Enjoy the luxury of floor heating and air conditioning, ensuring year-round comfort. With a balcony that invites natural light and fresh air, this unit is a serene retreat. The building provides excellent amenities, including a concierge service, security cameras, and a delivery box for your convenience. Located just a short walk from Kuhombutsu and Jiyugaoka stations, commuting is effortless, allowing you to fully embrace the vibrant lifestyle this area has to offer. Experience the perfect blend of comfort and accessibility in your new home.
Listed by Tokyo Portfolio • Acting as intermediary
Listing updated: 2026-04-27
Around This Property
Kuhombutsu
12 min walk
- Oimachi
Jiyugaoka
14 min walk
- Toyoko
Oyamadai
15 min walk
- Oimachi
Floor Plans & Monthly Fees

¥490,000
Priceper month
Including management fee (¥0)¥0
•
Insurance (¥0)
2
Beds
1
Baths
104.69
m²
*This is just a guide and may not accurately reflect what the total upfront fees will be. Some management companies will have other unique fees not accounted for here. We will always explain the full breakdown of upfront costs.
**If you have pets and this is a pet friendly property, expect to pay at least one additional month in security deposit.

This property is listed by Tokyo Portfolio.
Phone: +81 (0)3-5447-8700
Address: 5-15-12 Minami-azabu, Minato-ku, Tokyo
License number: Governor of Tokyo License (1) No. 107013 / Member of the Ibaraki Prefecture Chapter of the All Japan Real Estate Association / Member of the Tokyo Metropolitan Area Real Estate Fair Trading Council










