











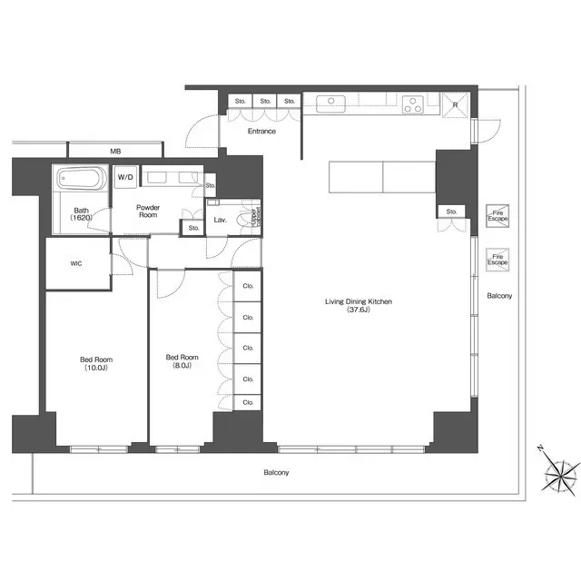
Perched high in Tokyo Port City Takeshiba Residence Tower, this contemporary 2LDK spans 122.01㎡, offering an expansive living space bathed in natural light. The generous living room provides the perfect stage for entertaining or quiet evenings, while floor-to-ceiling windows frame sweeping city and bay views. Residents enjoy premium amenities, including a fully equipped fitness center, lounge areas, and meticulously maintained common spaces that elevate everyday living. Located just steps from Hamamatsucho Station, the neighborhood blends effortless access to central Tokyo with waterside tranquility. Its proximity to parks, shopping, and cultural landmarks makes it ideal for professionals, couples, and small families seeking convenience, sophistication, and urban serenity.
Listed by Tokyo Portfolio • Acting as intermediary
Listing updated: 2025-10-06
Around This Property
Hamamatsucho
7 min walk
Yamanote
Daimon
8 min walk
- Asakusa
Floor Plans & Monthly Fees

¥830,000
Priceper month
Including management fee (-)¥0
•
Insurance (¥0)
2
Beds
1
Baths
122.01
m²

This property is listed by Tokyo Portfolio.
Phone: +81 (0)3-5447-8700
Address: 5-15-12 Minami-azabu, Minato-ku, Tokyo
License number: Governor of Tokyo License (1) No. 107013 / Member of the Ibaraki Prefecture Chapter of the All Japan Real Estate Association / Member of the Tokyo Metropolitan Area Real Estate Fair Trading Council

















