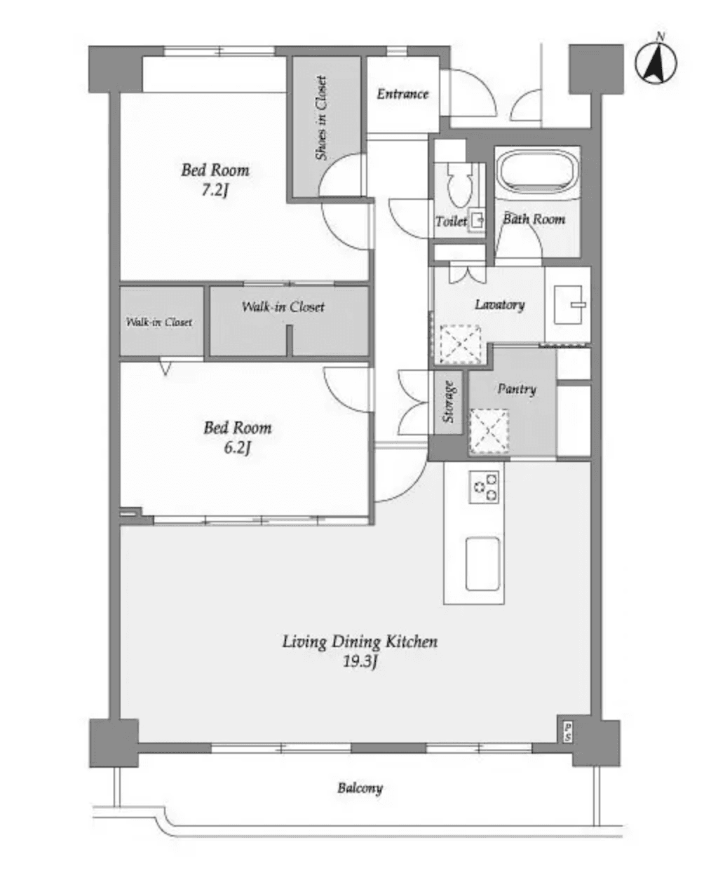
Welcome to Grand Heights Ikejiri, where comfort meets functionality in this spacious 2LDK condo unit, 0502. Spanning 80.48 square meters, the layout is thoughtfully designed to enhance daily living. The inviting living area flows seamlessly into a modern kitchen, perfect for both entertaining and quiet evenings at home. Enjoy the convenience of a walk-in closet, an indoor washing machine space, and a bathroom equipped with a dryer. With amenities like a delivery box and security cameras, peace of mind is part of your everyday experience. Located just an 8-minute walk from Komaba-todaimae Station, commuting is effortless, with additional access to Ikejiriohashi and Ikenoue stations nearby. Experience the perfect blend of style and practicality in this exceptional living space.
Listed by Tokyo Portfolio • Acting as intermediary
Listing updated: 2026-03-09
Around This Property
Komaba-todaimae
8 min walk
- Inokashira
Ikejiriohashi
13 min walk
- Den En Toshi
Ikenoue
14 min walk
- Inokashira
Floor Plans & Monthly Fees

¥400,000
Priceper month
Including management fee (¥15,000)¥15,000
•
Insurance (¥0)
2
Beds
1
Baths
80.48
m²
*This is just a guide and may not accurately reflect what the total upfront fees will be. Some management companies will have other unique fees not accounted for here. We will always explain the full breakdown of upfront costs.
**If you have pets and this is a pet friendly property, expect to pay at least one additional month in security deposit.

This property is listed by Tokyo Portfolio.
Phone: +81 (0)3-5447-8700
Address: 5-15-12 Minami-azabu, Minato-ku, Tokyo
License number: Governor of Tokyo License (1) No. 107013 / Member of the Ibaraki Prefecture Chapter of the All Japan Real Estate Association / Member of the Tokyo Metropolitan Area Real Estate Fair Trading Council











