








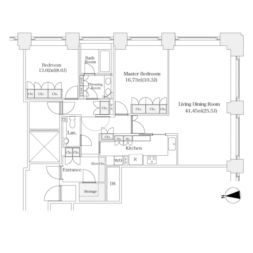
Set within the prestigious La Tour SHIBAKOEN, this elegant 2-bedroom residence blends spacious living with thoughtful design. The generous 119.38㎡ layout features a bright, open living area perfect for relaxation or entertaining, complemented by a large kitchen ideal for culinary enthusiasts. Ample storage throughout ensures a clutter-free lifestyle, while pet-friendly policies welcome your furry companions. Nestled near Shibakoen, this neighborhood offers a serene balance of urban convenience and lush green spaces, including the iconic Shiba Park and Tokyo Tower views. Ideal for professionals and small families seeking tranquility without sacrificing access to central Tokyo’s dynamic culture and amenities.
Listed by Tokyo Portfolio • Acting as intermediary
Listing updated: 2025-05-18
Around This Property
Shibakoen
4 min walk
- Mita
Akabanebashi
6 min walk
- Oedo
Mita
7 min walk
- Mita
- Asakusa
The British School Tokyo (Azabudai Hills)
Ages 3-18 years | By Car 6 mins by foot
Floor Plans & Monthly Fees

¥903,000
Priceper month
Including management fee (-)¥0
•
Insurance (¥0)
2
Beds
1
Baths
119.38
m²

More Units in This Building

La Tour SHIBAKOEN
2000
Built
1
Units on sale
This property is listed by Tokyo Portfolio.
Phone: +81 (0)3-5447-8700
Address: 5-15-12 Minami-azabu, Minato-ku, Tokyo
License number: Governor of Tokyo License (1) No. 107013 / Member of the Ibaraki Prefecture Chapter of the All Japan Real Estate Association / Member of the Tokyo Metropolitan Area Real Estate Fair Trading Council






















