





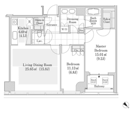
Welcome to unit 1808 at La Tour Shibuya Udagawa, where modern living meets comfort in a spacious 84.33 sqm layout. This 2LDK condo on the 18th floor offers a serene retreat with underfloor heating, ensuring warmth during colder months. The open design seamlessly connects the living area to the kitchen, making it ideal for both relaxation and entertaining. Enjoy the convenience of a walk-in closet and a separate bathroom and toilet, enhancing functionality for daily life. Step out onto your private balcony to take in the views, or enjoy the pet-friendly environment that welcomes your furry companions. Located just an 8-minute walk from Shibuya Station, commuting is effortless, with multiple train lines at your doorstep. Experience the perfect blend of comfort and accessibility in this inviting home.
Listed by Tokyo Portfolio • Acting as intermediary
Listing updated: 2026-02-28
8 min walk

Ages 3-18 years | By Car 9 mins by foot

¥1,150,000
Priceper month
Including management fee (¥0)¥0
•
Insurance (¥0)
2
Beds
1
Baths
84.33
m²
*This is just a guide and may not accurately reflect what the total upfront fees will be. Some management companies will have other unique fees not accounted for here. We will always explain the full breakdown of upfront costs.
**If you have pets and this is a pet friendly property, expect to pay at least one additional month in security deposit.


La Tour Shibuya Udagawa
2019
Built
3
Units on sale
This property is listed by Tokyo Portfolio.
Phone: +81 (0)3-5447-8700
Address: 5-15-12 Minami-azabu, Minato-ku, Tokyo
License number: Governor of Tokyo License (1) No. 107013 / Member of the Ibaraki Prefecture Chapter of the All Japan Real Estate Association / Member of the Tokyo Metropolitan Area Real Estate Fair Trading Council