







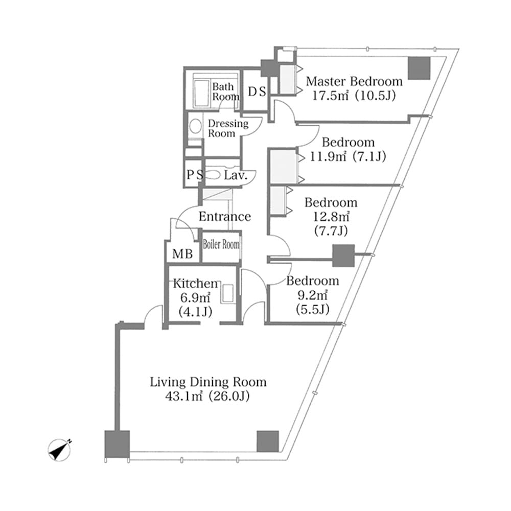
Welcome to NICHIREI HIGASHI GINZA RESIDENCE, a rare 4LDK gem offering 131.4㎡ of elegant space in the heart of the city. Perfectly suited for families or creatives, this bright, generously proportioned home invites both comfort and versatility—ideal for entertaining, working from home, or even practicing music, with instrument use negotiable. Modern conveniences like air conditioning and a secure auto-lock system enhance daily living in this timeless urban retreat. Nestled near Higashi-Ginza, this vibrant area blends culture, luxury, and connectivity. Steps from Kabuki-za Theatre, upscale dining, and designer shopping, it appeals to cosmopolitan families, professionals, and artists alike. A dynamic lifestyle begins here.
Listed by Tokyo Portfolio • Acting as intermediary
Listing updated: 2025-06-30
Around This Property
Tsukiji
7 min walk
- Hibiya
Tsukijishijo
11 min walk
- Oedo
Chuo International School
Ages 1-11 years | Walk 9 mins by foot
Floor Plans & Monthly Fees

¥750,000
Priceper month
Including management fee (-)¥0
•
Insurance (¥0)
4
Beds
1
Baths
131.4
m²

More Units in This Building

NICHIREI HIGASHI GINZA RESIDENCE
1991
Built
1
Units on sale
This property is listed by Tokyo Portfolio.
Phone: +81 (0)3-5447-8700
Address: 5-15-12 Minami-azabu, Minato-ku, Tokyo
License number: Governor of Tokyo License (1) No. 107013 / Member of the Ibaraki Prefecture Chapter of the All Japan Real Estate Association / Member of the Tokyo Metropolitan Area Real Estate Fair Trading Council



























